LS12 4FA - 3 bedroom semidetached house for sale in Thornhill View, Le…

View on Property Piper

3 bedroom semi-detached house for sale in Thornhill View, Leeds, West Yorkshire, LS12

Summary - Thornhill View, Leeds, West Yorkshire, LS12 LS12 4FA

3 bed 2 bath Semi-Detached

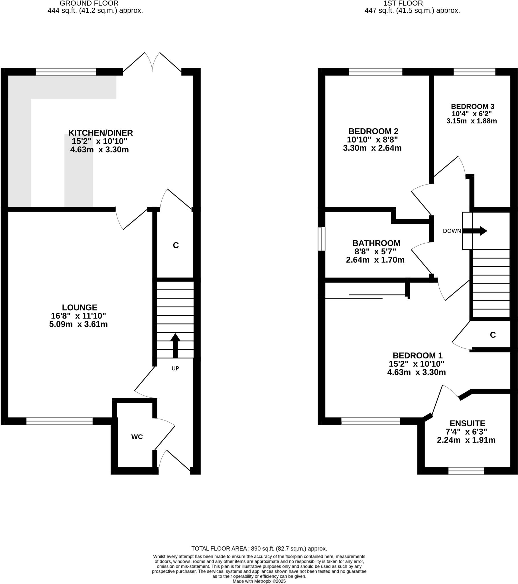
Three-bedroom modern semi with low-maintenance garden and parking for three to four cars.
Principal bedroom with dressing area and en suite
Tucked at the end of an exclusive cul-de-sac in Upper Wortley, this three-bedroom semi offers a modern, low-maintenance family home. The principal bedroom includes a dressing area and en suite, while two further bedrooms and a stylish family bathroom complete the first floor.

The ground floor is arranged for contemporary family life: a spacious lounge with decorative panelling and an open-plan kitchen–diner that opens onto a landscaped, low-maintenance garden with patio, artificial lawn and a decked seating area. Practical extras include a downstairs WC, understairs storage and loft access for additional storage.

Practical benefits include off-street parking for three to four cars, freehold tenure, fast broadband and easy access to local schools, shops and transport links into Leeds. The property is new build, finished to a modern specification with integrated kitchen appliances and gas central heating.

Notable limitations: the overall footprint is modest at about 890 sq ft and the plot is small, which will limit scope for significant extensions. The location is in a busy conurbation (average local crime and deprivation scores) rather than a rural setting. Buyers seeking large gardens or extensive internal floor area should consider this before viewing.

Property Details

Image Descriptions

Floorplan Description

Rooms

Textual Property Features

Target Audience

AI Tags

Detected Visual Features

EPC Details

Nearby Schools

Nearest Bars And Restaurants

,,,,}

Nearest General Shops

,,}

Nearest Grocery shops

,,}

Nearest Supermarkets

,,}

Nearest Religious buildings

,,}

Nearest Medical buildings

,,,}

Nearest Airports

}

Nearest Leisure Facilities

,,,,}

Nearest Tourist attractions

,,}

Nearest Train stations

,,,,}

Nearest Bus stations and stops

,,,,}

Nearest Hotels

,,}

Tags

Local Market Stats

AirBnB Data

Similar Properties

Meta

High Res Images

Compatible Images

Low res Images

Thumbnails

Raw Images

High Res Floorplan Images

Compatible Floorplan Images

Low res Floorplan Images

FloorplanImages Thumbnail

Raw Floorplan Images