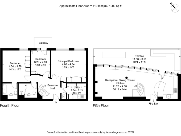
**Standout Features:**
- Spacious penthouse duplex: 1,290 sq. ft. with 3 double bedrooms.
- Stunning rooftop terrace offering panoramic skyline views.
- 24-hour concierge and secure off-street parking included.
- Located in the vibrant Tower Bridge area, near London Bridge.
- Long 988-year lease with no ground rent.
**Notable Concerns:**
- Annual service charge of £8,964 may be considered high.
- Built in the mid-1980s, meaning some updates may be needed.
Discover the allure of urban living in this stunning penthouse duplex apartment, ideally situated in the cosmopolitan neighbourhood of Tower Bridge. Spanning an impressive 1,290 sq. ft., this residence features three spacious double bedrooms and two modern bathrooms, including an ensuite with a luxurious bathtub equipped with a TV. The heart of the home boasts a remarkable open-plan kitchen and dining area that opens directly onto a large private roof terrace, perfect for entertaining or soaking in spectacular city views.
Designed by the renowned architect Piers Gough and now Grade II-listed, this architectural gem offers a unique blend of modernity and historical charm. Residents benefit from exclusive amenities, including a gym and spa with a pool, and a dedicated concierge service to enhance your lifestyle. The vibrant Shad Thames waterfront, dotted with top restaurants and cafes, is just a stone's throw away, making this the perfect setting for both relaxation and socializing.
The property does come with a relatively high service charge of £8,964, but the benefits of security, parking, and maintenance services are unparalleled in this desirable area. With low crime rates, excellent local schools, and strong transport links, this loft-style apartment is a rare find that offers an enviable lifestyle in the heart of London. Don’t miss out on the chance to claim your slice of city paradise—schedule a viewing today!
1 bedroom flat for sale in The Circle, Queen Elizabeth Street, London, SE1 — £550,000 • 1 bed • 1 bath • 661 ft²
1 bedroom flat for sale in Queen Elizabeth Street, London, SE1 — £575,000 • 1 bed • 1 bath • 647 ft²
3 bedroom flat for sale in The Circle,
Queen Elizabeth Street, SE1 — £1,350,000 • 3 bed • 3 bath • 1244 ft²
1 bedroom flat for sale in The Circle, Queen Elizabeth Street, London, SE1 — £695,000 • 1 bed • 1 bath • 760 ft²
1 bedroom flat for sale in Queen Elizabeth Street, London, SE1 — £525,000 • 1 bed • 1 bath • 589 ft²
1 bedroom duplex for sale in The Circle, Queen Elizabeth Street, London, SE1 — £550,000 • 1 bed • 1 bath • 663 ft²






















































































