BD13 2AJ - 2 bedroom semidetached house for sale in Russell Hall Lane,…

View on Property Piper

2 bedroom semi-detached house for sale in Russell Hall Lane, Queensbury, Bradford, BD13

Summary - 3, Russell Hall Lane, Queensbury, BRADFORD BD13 2AJ

2 bed 1 bath Semi-Detached

**Standout Features:**
- Spacious 2-bedroom semi-detached home from the 1800s
- Freehold tenure with significant renovation potential
- Large, beautifully landscaped front and rear gardens
- Versatile layout with multiple entertaining spaces
- Generous parking with tandem garage
- Excellent broadband and mobile signal
- Close proximity to several highly-rated schools

**Concerns:**
- Situated in an area classified as 'very deprived'
- Average crime rates

This charming semi-detached home blends character and functionality, perfect for families and first-time buyers looking for space and scope for personal touches. Built in the 1800s, the property boasts traditional features like exposed wooden beams and large windows that bathe the interiors in natural light. With two spacious double bedrooms, a cozy lounge with an elegant electric fireplace, and an L-shaped kitchen with integrated appliances, this home is move-in ready while still offering possibilities for further renovations.

The outdoor space is equally impressive, featuring a manicured garden ideal for relaxation or family gatherings. You'll enjoy the convenience of a driveway and tandem garage, currently serving as a workshop—flexible enough to adapt to your lifestyle needs. Set in a neighborhood with great amenities, including reputable schools and essential services, this property presents a unique opportunity for comfortable living in a friendly community. Don’t miss out—opportunities like this don’t last long!

Property Details

Brochure Descriptions

Image Descriptions

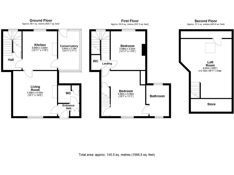
Floorplan Description

Rooms

Textual Property Features

Detected Visual Features

Nearby Schools

Nearest Bars And Restaurants

,,,,}

Nearest General Shops

,,}

Nearest Grocery shops

,,}

Nearest Supermarkets

,,}

Nearest Religious buildings

,,}

Nearest Medical buildings

,,,}

Nearest Airports

}

Nearest Leisure Facilities

,,,,}

Nearest Tourist attractions

,,}

Nearest Train stations

,,,,}

Nearest Bus stations and stops

,,,,}

Nearest Hotels

,,}

Tags

Local Market Stats

Similar Properties

Meta

High Res Images

Compatible Images

Low res Images

Thumbnails

Raw Images

High Res Floorplan Images

Compatible Floorplan Images

Low res Floorplan Images

FloorplanImages Thumbnail

Raw Floorplan Images