DL8 3QP - 2 bedroom cottage for sale in The House On The Hill, Hawes,…

View on Property Piper

2 bedroom cottage for sale in The House On The Hill, Hawes, DL8

Summary - The House On The Hill, The Hill DL8 3QP

2 bed 1 bath Cottage

**Key Features:**
- Charming two-bedroom Georgian stone cottage in Hawes
- Attractive views of the Yorkshire Dales and St. Margaret’s Church
- Fully furnished and currently functioning as a successful holiday let
- Cozy lounge with a multi-fuel stove
- Dual aspect dining kitchen, perfect for entertaining
- Newly fitted bathroom with luxurious roll-top bath and large walk-in shower
- Quaint shared courtyard with a historic right of way
- Off-street parking available nearby, just a minute's walk from the property

Discover the charm of this delightful two-bedroom Georgian stone cottage nestled in the heart of Hawes. Close to local amenities and just steps from the breathtaking Yorkshire Dales, this stylish retreat combines period details with modern comforts. The inviting lounge, centered around a cozy multi-fuel stove, offers warmth and character, while the spacious, light-filled dining kitchen is ideal for gatherings of friends and family. Upstairs, two beautifully appointed bedrooms provide restful accommodations, complemented by a luxurious newly fitted bathroom featuring both a roll-top bath and a large walk-in shower.

Currently operating as a successful holiday let, this fully furnished home is perfect for immediate enjoyment or as a lucrative investment opportunity. Outside, a charming shared courtyard provides a serene space to unwind, and with free parking just a short stroll away, convenience is at your doorstep. This property is not just a home but also a lifestyle, blending rural tranquility with easy access to community conveniences. Experience its true potential—viewing is a must!

Property Details

Brochure Descriptions

Image Descriptions

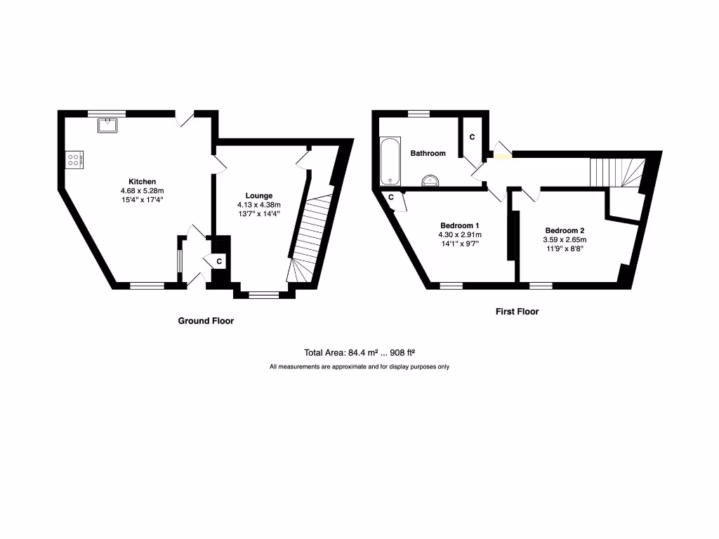
Floorplan Description

Rooms

Textual Property Features

Detected Visual Features

EPC Details

Nearby Schools

Nearest Bars And Restaurants

,,,,}

Nearest General Shops

,,}

Nearest Grocery shops

,,}

Nearest Supermarkets

,,}

Nearest Religious buildings

,,}

Nearest Medical buildings

,,,}

Nearest Leisure Facilities

,,,,}

Nearest Tourist attractions

,,}

Nearest Train stations

,,,,}

Nearest Bus stations and stops

,,,,}

Nearest Hotels

,,}

Tags

AirBnB Data

Similar Properties

Meta

High Res Images

Compatible Images

Low res Images

Thumbnails

Raw Images

High Res Floorplan Images

Compatible Floorplan Images

Low res Floorplan Images

FloorplanImages Thumbnail

Raw Floorplan Images