Chain-free, commuter-friendly ground-floor home with parking and communal gardens..
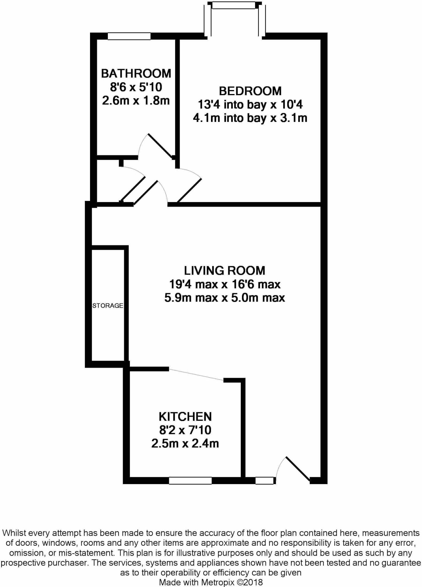
Ground-floor one-bedroom maisonette, approx. 506 sq ft
A spacious one-bedroom ground-floor maisonette in a small, well-kept development just 0.3 miles from Watford North station, ideal for first-time buyers or buy-to-let investors seeking immediate commuter convenience. The flat offers a generous lounge/diner with excellent built-in storage, an open-plan kitchen, a double bedroom with a bay window and a modern bathroom. UPVC double glazing, gas central heating and allocated off-street parking add practical, low-hassle living.
Externally there are large communal gardens for summer use and visitor parking. The property is offered chain free and comes with a share of freehold, which provides stronger long-term control compared with many leases. Service charges are modest (about £890/year) and there is no ground rent.
Notable considerations: the lease has approximately 90 years remaining, which may affect mortgage availability and future value unless extended. The local area records above-average crime rates, so purchasers should check recent local crime statistics and consider security measures. The plot is small and the maisonette forms part of a mid-terrace modern block built in the 1980s.
In short, this is a practical, well-presented starter home or rental opportunity in a commuter-friendly location, with clear value-drivers (parking, storage, gardens, share of freehold) balanced by the medium-length lease and local safety considerations.
1 bedroom maisonette for sale in Sandringham Road, North Watford, WD24 — £224,000 • 1 bed • 1 bath • 463 ft²
1 bedroom maisonette for sale in Victoria Road, Watford, WD24 — £210,000 • 1 bed • 1 bath • 495 ft²
1 bedroom flat for sale in Leavesden Road, Watford, WD24 — £179,950 • 1 bed • 1 bath • 340 ft²
1 bedroom maisonette for sale in Durban Road West, Watford, WD18 — £220,000 • 1 bed • 1 bath • 460 ft²
1 bedroom maisonette for sale in St Johns Road, WATFORD, WD17 — £275,000 • 1 bed • 1 bath • 642 ft²
2 bedroom maisonette for sale in First Avenue, WATFORD, WD25 — £360,000 • 2 bed • 1 bath • 732 ft²


































