Fully compliant tenanted flat with immediate income and strong yield potential.
Tenanted, fully compliant buy-to-let with immediate income
Gross yield c.12% at asking price (£550 pcm from 1 Nov)
41 m² (441 ft²) one-bedroom flat, furnished and sold as seen
Freehold; tenant in situ since Feb 2021 (steady occupancy)
EPC rating E — energy efficiency and running costs may be high
Electric storage and panel heating; hot water from tank system
Located in Torry: strong rental demand, very deprived area affects growth
Modest refurbishment potential to improve EPC and rent
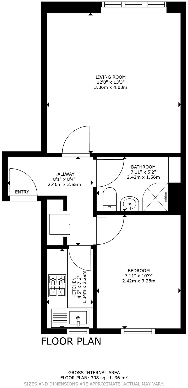
Situated on the second floor of a traditional tenement in Torry, this one-bedroom flat is offered as a fully compliant, furnished buy-to-let with tenants in situ. The current tenancy has run since February 2021 and delivers immediate income, rising to £550 pcm from 1 November. At c.41 m² (441 ft²) the accommodation includes living room, kitchen, double bedroom and an internal three-piece shower room.
The building retains period character externally with a stone facade and slate roof, while the flat benefits from modern UPVC double glazing and straightforward electric storage and panel heating. The property is freehold, sold as seen with inventory included, and presents a hands-off rental proposition for an investor seeking predictable cashflow and a high headline yield (c.12% at the asking price).
Buyers should note the EPC rating of E and that heating and hot water are electric (storage heaters and a hot water tank), which can affect running costs and future tenant appeal. The local area is described as a cosmopolitan student and migrant-commuter neighbourhood with very high area deprivation; this supports demand for let properties but can influence long-term capital growth and tenant profile.
This flat suits an investor wanting immediate income from a low-management tenancy in a well-connected part of Aberdeen. It also offers modest scope for rent-growth or value uplift through targeted refurbishment, but any purchaser should budget for potential energy-efficiency improvements and routine maintenance over time.
1 bedroom flat for sale in Roslin Street, Aberdeen, AB24 — £50,995 • 1 bed • 1 bath • 409 ft²
2 bedroom flat for sale in Rosebank Gardens, Aberdeen, AB11 — £104,995 • 2 bed • 1 bath • 581 ft²
1 bedroom flat for sale in Urquhart Road, Aberdeen, AB24 — £47,995 • 1 bed • 1 bath • 376 ft²
1 bedroom flat for sale in 66, Menzies Road, Flat E, Torry, Aberdeen, AB119AQ, AB11 — £20,000 • 1 bed • 1 bath
1 bedroom flat for sale in School Terrace, Aberdeen, AB24 — £65,000 • 1 bed • 1 bath • 516 ft²
1 bedroom flat for sale in 69, Menzies Road, Flat B, Aberdeen, AB119AR, AB11 — £30,000 • 1 bed • 1 bath






























