**Standout Features:**
- Modern two-bedroom second-floor retirement apartment
- Excellent decorative order and overlooking communal garden
- Fully fitted kitchen with integrated appliances
- 24-hour Careline system for safety and security
- Onsite Lodge Manager five days a week
- Guest Suite for visitors, available across all Churchill developments
- Private off-street parking and great town center location
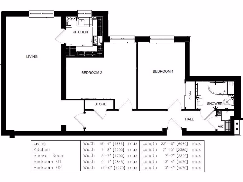
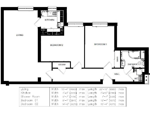
This contemporary two-bedroom retirement apartment in the highly desirable King Harold Lodge offers a perfect blend of comfort and security for those looking to downsize. Boasting generous living spaces, the apartment features large windows that fill the area with natural light, while the living room's electric fireplace provides a cozy ambiance. The fully fitted kitchen is equipped with modern appliances, ready for your culinary adventures.
Located in the heart of Waltham Abbey, this development not only affords easy access to excellent shopping, dining, and leisure facilities but is also close to beautiful open spaces like Epping Forest for those who enjoy outdoor pursuits. With a dedicated Lodge Manager, vibrant social activities, and a comprehensive safety system, this property ensures a secure and community-focused lifestyle.
While the annual service charges may seem above average at £6,053.15, they encompass crucial services such as heating, maintenance, and insurance—providing unparalleled peace of mind. Given its favorable location and delightful amenities, this exceptional apartment is perfect for retirees seeking a serene yet connected living experience. Don't miss out on this opportunity; schedule a viewing today and envision your new chapter in comfort and security!
2 bedroom retirement property for sale in King Harold Lodge, Waltham Abbey, EN9 — £225,000 • 2 bed • 1 bath • 725 ft²
1 bedroom retirement property for sale in King Harold Lodge, Waltham Abbey, EN9 — £180,000 • 1 bed • 1 bath • 585 ft²
1 bedroom retirement property for sale in King Harold Lodge, Waltham Abbey, EN9 — £210,000 • 1 bed • 1 bath • 451 ft²
1 bedroom retirement property for sale in King Henry Lodge, Chingford, E4 — £190,000 • 1 bed • 1 bath • 536 ft²
2 bedroom retirement property for sale in King Henry Lodge, Chingford, E4 — £350,000 • 2 bed • 1 bath • 722 ft²
2 bedroom retirement property for sale in King Harold Lodge , , EN9 — £160,000 • 2 bed • 1 bath • 731 ft²


















































