Chain-free family home with new roof and boiler near town and transport links.
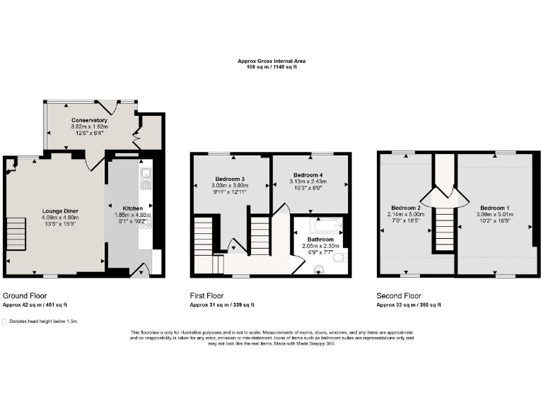
Four bedrooms across three storeys
End-terrace Victorian character
New roof installed recently
New boiler fitted recently
Chain free freehold sale
Small overall size and plot
Single bathroom only
High local crime and deprivation levels
This end-terraced Victorian house offers four bedrooms across three storeys, a large living area and practical room count for growing families. The property is chain-free and comes with important recent works: a new roof and a new boiler reduce short-term maintenance worry.
Located close to Aberdare town centre and within walking distance of the train station, the house benefits from excellent mobile signal and fast broadband — useful for commuting and home working. Council tax is very low, and local amenities including shops, schools and leisure facilities are all nearby.
Buyers should note the home sits on a small plot and the overall footprint is compact despite its three-storey layout. There is a single bathroom and the area records high crime and very high deprivation statistics, which may affect resale or rental appeal. The property shows signs of being a flexible refurbishment opportunity rather than a fully finished move-in home.
For families seeking space in a sought-after Gadlys Road location, or investors targeting value-add projects, this freehold period terrace presents a chance to modernise and personalise while benefitting from recent roof and boiler upgrades. Viewings are recommended for anyone needing practical three-storey accommodation close to transport links.
2 bedroom terraced house for sale in Ynys-llwyd Street, Aberdare, CF44 7NW, CF44 — £119,750 • 2 bed • 1 bath • 756 ft²
4 bedroom house for sale in Clifton Street, Aberdare, , CF44 — £204,995 • 4 bed • 3 bath • 1190 ft²
5 bedroom semi-detached house for sale in Monk Street, Aberdare, CF44 7PA, CF44 — £299,950 • 5 bed • 3 bath
4 bedroom terraced house for sale in Herbert Street Abercynon, Mountain Ash, CF45 — £165,000 • 4 bed • 1 bath • 992 ft²
3 bedroom terraced house for sale in Cardiff Road, Aberdare, CF44 6HX, CF44 — £134,500 • 3 bed • 1 bath • 786 ft²
2 bedroom terraced house for sale in Wind Street, Aberdare, CF44 7LL, CF44 — £119,950 • 2 bed • 1 bath • 520 ft²


























































