**Standout Features:**
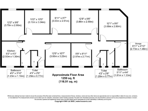
- 6 spacious double bedrooms
- Generous living room ideal for entertaining
- Convenient walking distance to Bethnal Green and Whitechapel stations
- Close proximity to Sainsbury's (2 minutes on foot)
- Two well-equipped bathrooms and two separate toilets
- Secure entry system for added peace of mind
- Long lease and reasonable hot water service charge
- Vibrant urban setting near Brick Lane's diverse cultural scene
**Potential Considerations:**
- High crime rate in the area
- Solid brick walls with assumed no insulation may imply limited energy efficiency
- Above-average service charge of £6,500
---
This substantial flat offers an exceptional opportunity for families or professionals seeking a spacious home in one of London’s most vibrant neighborhoods. With six generously sized double bedrooms and a large living room perfect for relaxation and entertaining, the property comfortably accommodates a large household or creates an ideal setting for social gatherings. Enjoy the convenience of two well-appointed bathrooms and additional toilets, ensuring ample facilities for you and your guests.
Situated just a short walk from Bethnal Green and Whitechapel stations, commuting is a breeze, while local amenities, including Sainsbury's, are mere minutes away. The vibrant atmosphere of Brick Lane is also a 15-minute stroll, providing a rich selection of culinary and cultural experiences. Although the area does experience a higher crime rate, the secure entry system enhances the safety of the living space. With a long lease and hot water included in the service charge, this property presents a fantastic blend of location and comfort. Don’t miss your chance to make this remarkable flat your new home!
3 bedroom flat for sale in Tent Street, London, E1 — £450,000 • 3 bed • 1 bath • 612 ft²
2 bedroom flat for sale in Darling Row, London, E1 — £335,000 • 2 bed • 1 bath • 551 ft²
4 bedroom flat for sale in Headlam Street, Tower Hamlets, E1 — £425,000 • 4 bed • 1 bath • 732 ft²
2 bedroom flat for sale in Commercial Road, London E1 — £330,000 • 2 bed • 1 bath • 657 ft²
1 bedroom flat for sale in Tent Street, LONDON, E1 — £282,500 • 1 bed • 1 bath • 412 ft²
4 bedroom flat for sale in Darling Row, London, E1 — £470,000 • 4 bed • 1 bath


















































