**Standout Features:**
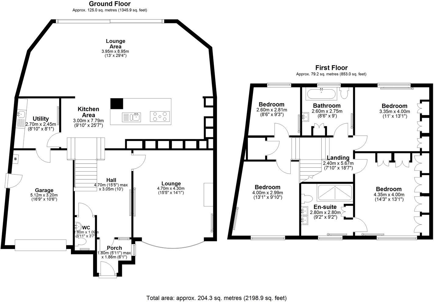
- Extended four-bedroom semi-detached family home
- Elegant living room with bay window and working fireplace
- Open-plan kitchen/diner with skylight, sliding doors, and exposed brick
- Luxurious master suite with spa-style en-suite and built-in wardrobes
- Private rear garden with patio and access
- Off-street parking and attached garage
- Excellent location near top schools, local amenities, and transport links
**Potential Downsides:**
- Above-average crime rate in the area
- Possible maintenance concerns due to the property's age
Step into this beautifully extended four-bedroom family home located in the exclusive Melton Park area of Gosforth. Ideal for families or professionals, the property combines modern living with elegance and functionality. The heart of the home is the incredible open-plan kitchen and living area, featuring a stunning skylight that floods the space with natural light, sleek integrated appliances, and inviting sliding doors that seamlessly connect to a private rear garden—perfect for summer entertaining.
The luxurious master suite serves as a perfect retreat, complete with a spa-like en-suite and ambient lighting catered for relaxation. With two additional spacious double bedrooms and a versatile single bedroom ideal for a home office or nursery, the layout offers flexibility for various needs. The modern family bathroom and convenient downstairs WC are additional highlights.
Externally, enjoy off-street parking on the driveway leading to the attached garage, along with a peaceful garden oasis to unwind in. With excellent access to the A1 and proximity to well-regarded schools, this property is poised for those seeking comfort, community, and growth potential. Act quickly—homes of this caliber in such a desirable location are a rare find and don’t stay on the market long!
5 bedroom semi-detached house for sale in Kilnshaw Place, Newcastle upon Tyne, Tyne and Wear, NE3 — £400,000 • 5 bed • 2 bath
4 bedroom terraced house for sale in Featherstone Grove, Gosforth, NE3 — £475,000 • 4 bed • 3 bath • 2290 ft²
3 bedroom semi-detached house for sale in Newlands Avenue, Newcastle Upon Tyne, NE3 — £320,000 • 3 bed • 1 bath • 1281 ft²
4 bedroom bungalow for sale in Heathfield Place, Newcastle upon Tyne, Tyne and Wear, NE3 — £400,000 • 4 bed • 1 bath
4 bedroom semi-detached house for sale in Oaklands, Gosforth, Newcastle upon Tyne, NE3 — £1,100,000 • 4 bed • 1 bath • 2254 ft²
5 bedroom semi-detached house for sale in Eastcliffe Avenue, Newcastle upon Tyne, Tyne and Wear, NE3 — £380,000 • 5 bed • 1 bath • 1690 ft²


























































































































