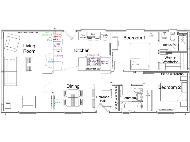
**Standout Features:**
- Modern 2021 2-bedroom Prestige Sofa park home
- En-suite shower and walk-in wardrobe to master bedroom
- Fully fitted kitchen with integrated appliances
- Spacious lounge and dining areas
- South-facing corner plot with uninterrupted views
- Located in a secure, pet-friendly, over 50s residential park
- No Stamp Duty, chain-free sale
Discover the charm of this contemporary 2-bedroom park home, nestled within the serene Gateforth Park community designed specifically for residents aged 50 and over. This home, spacious at 880 sq.ft., features a light-filled lounge with large windows and an electric fireplace, alongside a fully fitted kitchen-diner equipped with modern appliances. The master suite offers a luxurious en-suite and a walk-in wardrobe, while the second bedroom currently functions as an office.
Enjoy tranquil outdoor living on your South-facing corner plot, which boasts a beautifully landscaped garden complete with patios and a spacious metal storage shed. With amenities including fishing lakes, a community center, and close proximity to the conveniences of Selby and Thorpe Willoughby, this property presents an appealing lifestyle for retirees seeking comfort and connection.
Despite the affordable council tax and exemption from stamp duty, potential buyers should consider the ground rent of £2784.72 annually and adhere to the park's age restrictions. This opportunity is both exclusive and inviting—don't miss out on securing your place in this thriving community!
2 bedroom park home for sale in Vale Of York, Yorkshire, YO8 — £222,500 • 2 bed • 2 bath • 800 ft²
2 bedroom park home for sale in Caesars Close, Gateforth Park, YO8 — £269,000 • 2 bed • 2 bath • 827 ft²
2 bedroom park home for sale in Vale Of York, Yorkshire, YO8 — £259,100 • 2 bed • 2 bath • 920 ft²
2 bedroom house for sale in St. George Close, Gateforth Park, Selby, YO8 — £180,000 • 2 bed • 2 bath • 834 ft²
2 bedroom park home for sale in Henwood Drive, Gateforth Park, Selby, YO8 — £170,000 • 2 bed • 2 bath • 830 ft²
2 bedroom park home for sale in Flaxley Road, Selby, YO8 — £80,000 • 2 bed • 1 bath • 722 ft²






























































































