RH6 0AR - 3 bedroom detached house for sale in Reigate Road, Hookwood…

View on Property Piper

3 bedroom detached house for sale in Reigate Road, Hookwood, Surrey, RH6

Summary - ROSE COTTAGE, REIGATE ROAD, HORLEY, HOOKWOOD RH6 0AR

3 bed 1 bath Detached

**Standout Features:**
- Newly renovated, modern home with classic Georgian architecture
- 4th bedroom/office and luxurious family bathroom
- Large open-plan kitchen/dining/living room, perfect for entertaining
- Separate lounge and practical utility space
- Private driveway, attached garage/workshop, ample parking on a generous 0.18-acre plot
- Beautifully landscaped rear garden, ideal for outdoor gatherings
- Proximity to Gatwick Airport and Horley town centre

**Potential Concerns:**
- Average area deprivation and reported high crime rate
- Potential maintenance needs for cavity walls with assumed no insulation

**Summary:**
Discover the perfect blend of contemporary living and charming period features in this stunning three-bedroom detached family home, ideally nestled in the desirable Hookwood area. With a newly renovated interior, the expansive open-plan kitchen and dining space are designed for both family comfort and entertaining, complemented by sleek finishes and abundant natural light. The property boasts a versatile fourth bedroom/office, ensuring flexibility for your lifestyle. Step outside to enjoy a beautifully landscaped garden on an impressive 0.18-acre plot, offering plenty of room for outdoor relaxing and entertaining. This home is a rare find, presenting a unique opportunity for families seeking space, modern amenities, and a tranquil lifestyle while remaining conveniently located near local schools and transport links. Act quickly; properties like this don't stay on the market long!

Property Details

Brochure Descriptions

Image Descriptions

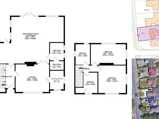
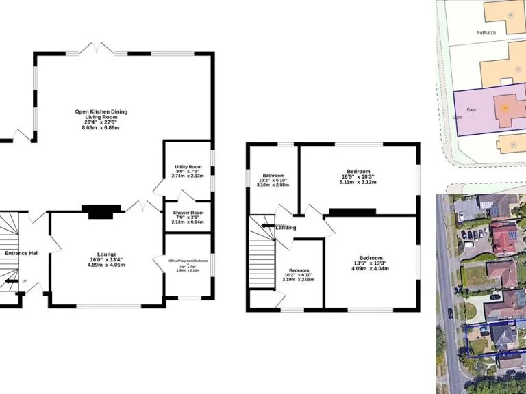
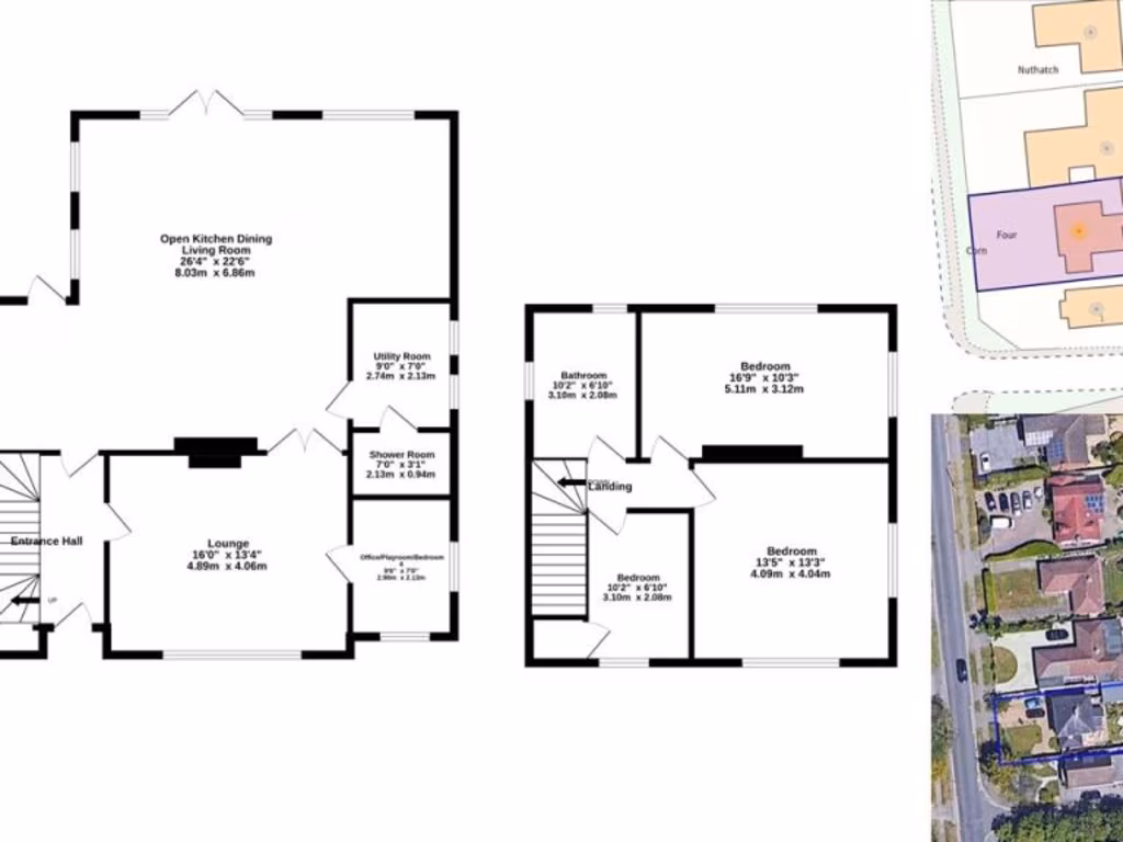
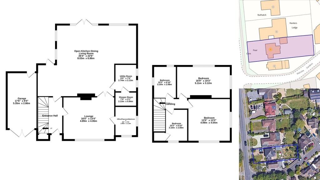
Floorplan Description

Rooms

Textual Property Features

Detected Visual Features

EPC Details

Nearby Schools

Nearest Bars And Restaurants

,,,,}

Nearest General Shops

,,}

Nearest Grocery shops

,,}

Nearest Supermarkets

,,}

Nearest Religious buildings

,,}

Nearest Medical buildings

,,,}

Nearest Airports

,}

Nearest Leisure Facilities

,,,,}

Nearest Tourist attractions

,,}

Nearest Train stations

,,,,}

Nearest Bus stations and stops

,,,,}

Nearest Hotels

,,}

Tags

Local Market Stats

AirBnB Data

Similar Properties

Meta

High Res Images

Compatible Images

Low res Images

Thumbnails

Raw Images

High Res Floorplan Images

Compatible Floorplan Images

Low res Floorplan Images

FloorplanImages Thumbnail

Raw Floorplan Images