Spacious family home with extension potential near schools and transport.
Traditional 1930s detached family home with bay windows
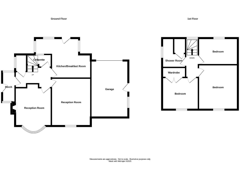
A traditional 1930s detached home on Ladysmith Road offering comfortable family living and scope to personalise. The house has two reception rooms, three bedrooms and a cellar, set within mature surrounding gardens with ample off-road parking. Good local schools and convenient transport links make this practical for daily family life.
The property benefits from double glazing and gas central heating, with a sizeable corner plot that the seller describes as offering further potential for extension (subject to consents). Ground-floor cloakroom and a larger-than-typical kitchen add practicality, while the living and dining rooms retain period proportions and bay windows.
Buyers should note material issues plainly: the extension has a flat roof, the EPC is rated E, and external walls are traditional solid brick likely without cavity insulation. The house will suit someone wanting to update and improve energy efficiency — there is refurbishment potential rather than a fully modern finish. All main services are connected and the tenure is freehold.
3 bedroom detached house for sale in HALESOWEN, Lyde Green, B63 — £335,000 • 3 bed • 2 bath • 1174 ft²
3 bedroom detached house for sale in HALESOWEN, High Haden Road, B64 — £349,950 • 3 bed • 1 bath • 1228 ft²
2 bedroom semi-detached house for sale in Maple Tree Lane, Halesowen, B63 2BW, B63 — £160,000 • 2 bed • 1 bath • 689 ft²
3 bedroom detached house for sale in CRADLEY HEATH, Timbertree Road, B64 — £365,000 • 3 bed • 1 bath • 917 ft²
3 bedroom semi-detached house for sale in Highfield Crescent, Rowley Regis, B65 — £250,000 • 3 bed • 1 bath • 840 ft²
3 bedroom detached house for sale in Tiled House Lane, Brierley Hill, DY5 4LH, DY5 — £285,000 • 3 bed • 1 bath • 754 ft²






















































































