One-floor family home with large plot and garage, prime for renovation.
Generous corner plot with large front and rear gardens
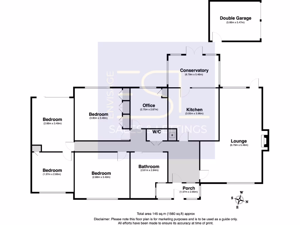
Set on a generous corner plot within easy walking distance of Cannon Park shopping centre, this four-bedroom bungalow offers comfortable single-level living and significant scope for improvement. The home provides a separate lounge, a good-sized kitchen, and four bedrooms across approximately 1,536 sq ft — useful for families who want space on one floor. A double detached garage to the rear and sizable front and rear gardens add parking, storage and outside space that are increasingly rare in the area.
The property is offered freehold and sits in a neighbourhood served by several well-rated primary and secondary schools, making it a practical choice for family buyers. Broadband and mobile signals are strong and local transport and leisure amenities are close by. The large corner plot also offers potential to reconfigure or extend (subject to planning permission), presenting an opportunity to add value through refurbishment or redesign.
Important - the bungalow needs renovation throughout and is currently presented in dated condition with a single bathroom for four bedrooms. The listing text refers to the building as a semi-detached corner plot while other notes describe it as detached, so buyers should verify the exact boundary and construction status. Local recorded crime levels are very high; purchasers should consider security measures as part of any refurbishment budget. Council tax is above average for the area.
2 bedroom detached bungalow for sale in Cannon Hill Road, Coventry, CV4 — £490,000 • 2 bed • 1 bath • 1323 ft²
3 bedroom detached bungalow for sale in The Spinney, Off The Kenilworth Road, Coventry, CV4 — £825,000 • 3 bed • 2 bath • 2009 ft²
3 bedroom detached bungalow for sale in Pilkington Road, Coventry, CV5 — £475,000 • 3 bed • 1 bath • 1789 ft²
4 bedroom bungalow for sale in Wychwood Avenue, Coventry, West Midlands, CV3 — £425,000 • 4 bed • 2 bath • 1407 ft²
4 bedroom detached bungalow for sale in Attwood Crescent, Coventry, CV2 — £370,000 • 4 bed • 2 bath • 1195 ft²
4 bedroom house for sale in Lilacvale Way - Off Cannon Hill Road, CV4 — £650,000 • 4 bed • 2 bath • 1711 ft²






