Compact, well-presented over-55 bungalow with communal gardens and allocated parking — lease and service charges matter..
- Two-bedroom bungalow in over-55s development
- 80% shared ownership; 20% retained equity
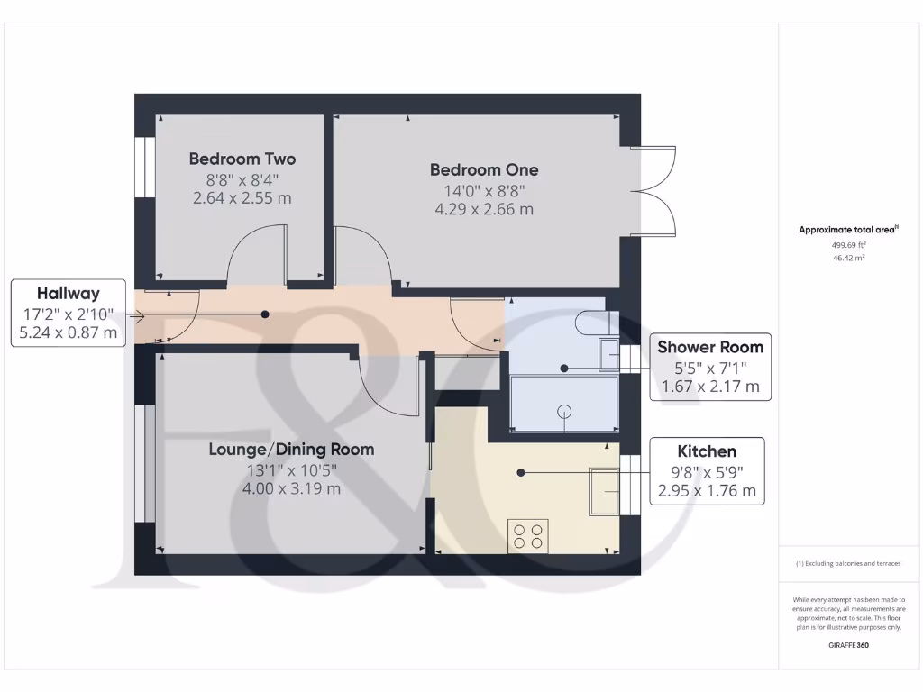
- Approx. 500 sqft — compact, easy to maintain
- Double glazing and gas central heating throughout
- Rear patio overlooking attractive communal gardens
- Allocated off-street parking space
- Lease ~63–64 years left — lenders may refuse
- Annual service charge c. £1,988.57; high local crime
A compact, well-presented two-bedroom bungalow in The Beeches, offered on an 80% shared ownership basis for over-55s. The accommodation is straightforward and tidy: entrance hall, lounge/dining room, fitted galley kitchen, two bedrooms and a recently re-appointed shower room. French doors from the rear bedroom open onto a private patio with views over attractive communal gardens. The property benefits from double glazing, mains gas central heating and an allocated off-street parking space.
This home will suit a retiree or downsizer seeking a low-maintenance, single-storey layout in a peaceful cul-de-sac setting. The development has an active residents group and nearby village amenities, with good road links into Derby. The small footprint and traditional plan make it easy to manage but limit extensive entertaining space.
Buyers should note material constraints: the lease has around 63–64 years remaining, which may make mortgage approval difficult and could affect future saleability. The property is leasehold with an annual service charge of approximately £1,988.57 (c. £165.71 pcm). Crime levels in the immediate area are recorded as very high, which prospective purchasers should consider when viewing.
Overall, this is a tidy, move-in-ready bungalow offering single-storey convenience and communal green space for an over-55 purchaser able to proceed on an 80% shared ownership basis. Financial and lease checks are recommended early in the process to confirm mortgageability and long-term suitability.
2 bedroom terraced bungalow for sale in Gascoigne Drive, Spondon, DE21 — £125,000 • 2 bed • 1 bath • 517 ft²
2 bedroom semi-detached bungalow for sale in Gascoigne Drive, Spondon, Derby, DE21 — £130,000 • 2 bed • 1 bath • 528 ft²
2 bedroom detached bungalow for sale in Gascoigne Drive, Spondon, Derby, DE21 — £125,000 • 2 bed • 1 bath • 538 ft²
2 bedroom bungalow for sale in Manifold Drive, Alvaston, DE24 — £70,000 • 2 bed • 1 bath • 527 ft²
2 bedroom semi-detached bungalow for sale in Bosworth Avenue, Sunnyhill, Derby, DE23 — £115,000 • 2 bed • 1 bath • 491 ft²
2 bedroom semi-detached house for sale in Gascoigne Drive, Spondon, Derby, DE21 — £130,000 • 2 bed • 1 bath • 539 ft²






































