Contemporary new-build with driveway, en-suite and good commuter links.
- Four bedrooms with main en-suite shower room
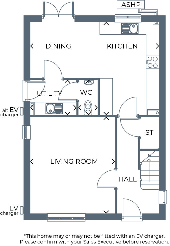
- Modern kitchen-dining with French doors to rear garden
- Utility room and ground-floor WC for family convenience
- Detached plot with driveway and small front/rear gardens
- New-build with 10-year warranty (2 years Gleeson, 8 years NHBC)
- Leasehold tenure; check ground rent and service charges
- Modest overall size (~965 sq ft) for a four-bedroom home
- Local area recorded as higher crime; investigate local stats
This four-bedroom new-build detached house on Oakwood Glade offers modern family living in Holbeach with a practical layout and contemporary finishes. The ground floor features a large living room, a kitchen-dining area with French doors to a modest rear garden, plus a useful utility and ground-floor WC. Upstairs provides four bedrooms including a main bedroom with private en-suite and a separate family bathroom.
Built to modern specifications with integrated appliances from recognised brands and backed by a 10-year warranty (first 2 years with Gleeson, then 8 years with NHBC), the home requires minimal immediate maintenance. Optional upgrades are available subject to build stage, allowing buyers to personalise fixtures and finishes at extra cost. The plot includes a front driveway and small front and rear gardens typical of this development.
Location strengths include good local amenities, nearby Tesco, fast broadband, and straightforward road links to the A16/A17 for commuting to Boston, Spalding and King's Lynn. Local schools are rated Good, supporting family appeal. Notable cautions: the property is leasehold, overall internal size is modest at about 965 sq ft for four bedrooms, council tax band is to be confirmed, and the area has been recorded with a higher crime figure — buyers should check the lease terms, service charges, and local safety statistics before proceeding.
4 bedroom detached house for sale in Oakwood Glade, Holbeach, PE12 7JS
, PE12 — £304,995 • 4 bed • 1 bath • 944 ft²
4 bedroom detached house for sale in Oakwood Glade, Holbeach, PE12 7JS
, PE12 — £299,995 • 4 bed • 1 bath • 944 ft²
4 bedroom detached house for sale in Oakwood Glade, Holbeach, PE12 7JS
, PE12 — £309,995 • 4 bed • 1 bath • 950 ft²
3 bedroom semi-detached house for sale in Oakwood Glade, Holbeach, PE12 7JS
, PE12 — £116,500 • 3 bed • 1 bath • 748 ft²
3 bedroom semi-detached house for sale in Oakwood Glade, Holbeach, PE12 7JS
, PE12 — £120,998 • 3 bed • 1 bath • 748 ft²
4 bedroom detached house for sale in Oakwood Glade, Holbeach, PE12 — £299,995 • 4 bed • 2 bath • 1156 ft²


















































