OX28 6HQ - Property for sale in 52 High Street, Witney, OX28

View on Property Piper

Property for sale in 52 High Street, Witney, OX28

Summary - High Street Plot OX28 6HQ

1 bed 1 bath Not Specified

**Standout Features:**
- Development opportunity in Witney town centre
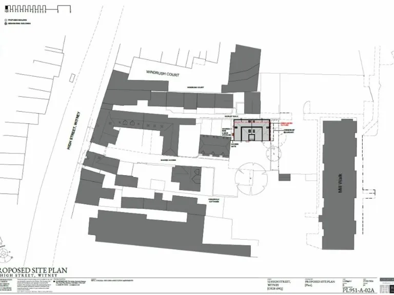
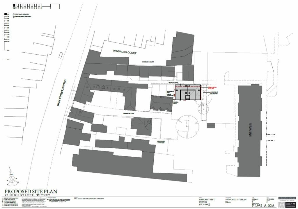
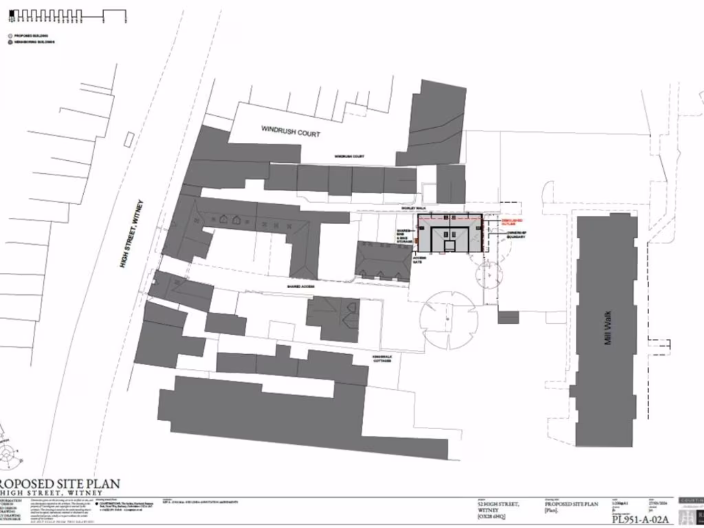
- Former Army Cadet Hall with approved planning for two dwellings
- Planning permission granted (Ref 24/00927/FUL) on 13 September 2024
- Excellent local amenities including shops, restaurants, and cinema
- Good local schools with "Good" Ofsted ratings
- Fast broadband and excellent mobile signal

**Potential Considerations:**
- Property size is relatively small, with a total of 1,126 sq ft
- Above-average crime rate in the area

Positioned in the heart of Witney, this former Army Cadet Hall presents an exceptional development opportunity for investors or those looking to create their dream homes. With planning permission already secured for two contemporary dwellings, this property allows for modern design elements like bi-fold doors and stone finishes, ensuring an attractive end product in a vibrant community. The local area boasts a wealth of amenities, from shopping to leisure activities, along with reputable schools nearby, making it ideally suited for families or professionals.

While the area does report above-average crime rates, the well-established neighborhood offers numerous benefits, underscored by fast broadband and excellent mobile connectivity. With its competitive price of £220,000, don’t miss out on this valuable opportunity to tap into the Witney property market and envision a bright future here. This offering is not expected to be available for long; act swiftly to secure this prime development site!

Property Details

Image Descriptions

Floorplan Description

Rooms

Textual Property Features

Detected Visual Features

Nearby Schools

Nearest Bars And Restaurants

,,,,}

Nearest General Shops

,,}

Nearest Grocery shops

,,}

Nearest Supermarkets

,,}

Nearest Religious buildings

,,}

Nearest Medical buildings

,,,}

Nearest Leisure Facilities

,,,,}

Nearest Tourist attractions

,,}

Nearest Train stations

,,,,}

Nearest Bus stations and stops

,,,,}

Nearest Hotels

,,}

Tags

Local Market Stats

AirBnB Data

Similar Properties

Meta

High Res Images

Compatible Images

Low res Images

Thumbnails

Raw Images

High Res Floorplan Images

Compatible Floorplan Images

Low res Floorplan Images

FloorplanImages Thumbnail

Raw Floorplan Images