Move-in-ready four-bed with loft conversion and gated garden, close to transport.
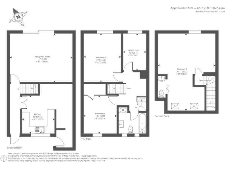
Four double bedrooms including loft conversion for added flexibility.
Recently renovated kitchen with adjacent utility room for practicality.
117 square metres internal space; mid-terrace, freehold.
Only one bathroom — may not suit larger households.
Small private garden with gated rear access; limited outdoor space.
Close to MINI/BMW plant (0.4 miles) and Oxford centre (2.9 miles).
System-built walls likely without insulation—expect energy upgrade costs.
Area rated very deprived; crime level average — consider local context.
This four-bedroom mid-terrace in East Oxford offers practical family living with recent updates and flexible space. The loft conversion and renovated kitchen increase usable space to 117 sq m, while a separate utility room helps keep daily routines organised.
Located 2.9 miles from Oxford city centre and 0.4 miles from the MINI/BMW plant, the house is well placed for commuters and local jobs. Good local schools (several rated Good), frequent buses, fast broadband and excellent mobile signal make it suited to families and professionals seeking convenience.
Outside, a small private garden with gated rear access provides secure outdoor space; the plot size is modest. There is only one bathroom, which may be a constraint for larger families or those used to en-suite facilities. The property is mid-20th century system-built construction and is assumed to lack cavity insulation, so buyers should budget for potential energy-efficiency upgrades.
The home is freehold and newly renovated internally, presenting a move-in-ready option with scope to add value through further improvements. Given the local area’s higher deprivation level and average crime, buyers should weigh neighbourhood factors alongside the property’s strong transport and amenity links.
4 bedroom end of terrace house for sale in Fern Hill Road, Oxford, OX4 — £520,000 • 4 bed • 2 bath • 1435 ft²
4 bedroom semi-detached house for sale in Swinburne Road, East Oxford, OX4 — £500,000 • 4 bed • 3 bath • 1184 ft²
4 bedroom terraced house for sale in Headley Way, Headington, OX3 — £625,000 • 4 bed • 2 bath • 1485 ft²
3 bedroom terraced house for sale in East Oxford, Oxfordshire, OX4 — £400,000 • 3 bed • 1 bath • 860 ft²
4 bedroom detached house for sale in Blandford Avenue, Oxford, Oxfordshire, OX2 — £1,500,000 • 4 bed • 2 bath • 1905 ft²
4 bedroom end of terrace house for sale in Reliance Way, Oxford, Oxfordshire, OX4 — £570,000 • 4 bed • 2 bath • 1484 ft²


















































































