Mid-century bungalow with garden, parking and no onward chain — in need of modernisation.
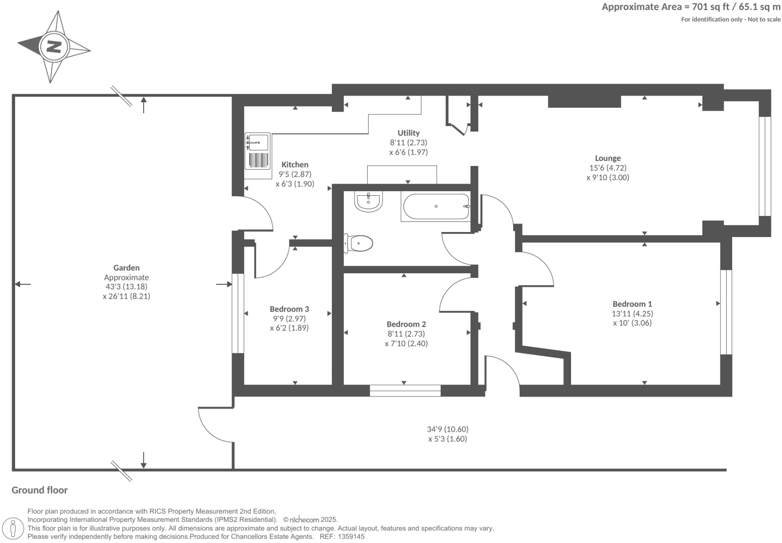
Three bedrooms in a single-storey layout
A mid-century three-bedroom semi-detached bungalow located in Bampton, offered freehold and sold with no onward chain. The single-storey layout sits on a decent plot with driveway parking, private rear garden and solar panels that help reduce running costs. With a compact footprint of about 701 sq ft, the home suits families looking for a ground-floor living arrangement or buyers seeking a manageable renovation project.
Constructed in the 1950s–60s, the property retains period proportions but requires modernization — external descriptions note unkempt areas and general updating needs. The accommodation includes a living room, separate kitchen, three bedrooms and a single bathroom, so space is modest and the bathroom arrangement may be limiting for larger households.
Practical benefits include mains gas central heating, cavity-filled walls, low council tax, fast broadband and excellent mobile signal. The bungalow sits about 0.3 miles from Bampton CofE Primary School and close to local amenities (station, playground, fire station, post box, leisure), making it convenient for families and commuters within a small-town setting.
This is a straightforward purchase for buyers who prioritise location, single-level living and a garden, and who are willing to invest in cosmetic improvements or a sympathetic refurbishment to unlock the property’s potential. Note the modest internal size and the need for updating when considering suitability and budget.
3 bedroom terraced house for sale in Bampton, Oxfordshire, OX18 — £300,000 • 3 bed • 1 bath • 900 ft²
3 bedroom semi-detached bungalow for sale in Bowling Green Close, Bampton, Oxfordshire, OX18 — £295,000 • 3 bed • 1 bath • 689 ft²
3 bedroom bungalow for sale in Calais Dene, Bampton, Oxfordshire, OX18 — £475,000 • 3 bed • 2 bath • 1387 ft²
3 bedroom detached house for sale in The Pieces, Bampton, OX18 — £385,000 • 3 bed • 1 bath • 904 ft²
3 bedroom semi-detached house for sale in Bampton, Oxfordshire, OX18 — £375,000 • 3 bed • 2 bath • 1140 ft²
3 bedroom semi-detached house for sale in Ampney Orchard, Bampton, Oxfordshire, OX18 — £350,000 • 3 bed • 2 bath • 926 ft²


















































































