Spacious outdoor areas and strong commuter links for family life.
Corner plot with dual parking, garage and upper storage area
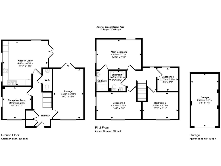
Stunning open-plan kitchen diner with integrated appliances
Master bedroom with ensuite plus three further bedrooms
Generous rear garden with two patio entertaining areas
Average overall house size — medium family footprint
Builder's warranty remaining (approx. one year) — confirm details
Fast broadband, average mobile signal, no flood risk
Freehold tenure; very low local crime rates
This modern detached family home sits on a rare corner plot in semi-rural Shifnal, offering practical living and outdoor space for everyday family life. The layout includes a versatile family sitting room, separate evening lounge and a large entertainment kitchen diner with integrated appliances — all designed for family time and social gatherings. Four well-proportioned bedrooms, including a master with ensuite, suit growing families or those needing a home office or guest room.
Outside, the generous rear garden with two patio areas and dual parking (front and rear) plus a garage with upper storage gives flexibility for cars, hobbies and storage. The plot benefits from a pleasant frontage and gated side access; the setting is estate-like but close to countryside walks and local parks. Transport links are strong for the area, with Shifnal town centre and the mainline train station within easy reach, making commuter routes convenient.
Practical points to note: the property is of average overall size for a detached family home and sits in a planned modern development rather than an isolated rural plot. The home remains under the builder’s warranty for a limited period (around one year remaining), so any post-build issues may still be covered but will need confirming. Broadband speeds are fast while mobile signal is average; there is no identified flood risk and local crime levels are very low.
This property will suit families who value a ready-to-live-in, show-home finish with useful outdoor entertaining areas and good transport links. A viewing is recommended to appreciate the corner-plot benefits, dual parking and versatile living spaces.
4 bedroom detached house for sale in West Way, Shifnal, TF11 — £439,950 • 4 bed • 2 bath • 1318 ft²
5 bedroom detached house for sale in Edge Avenue, Shifnal, Shropshire, TF11 — £490,000 • 5 bed • 3 bath • 1626 ft²
4 bedroom detached house for sale in Stone Drive, Shifnal, TF11 — £439,950 • 4 bed • 2 bath • 1324 ft²
4 bedroom detached house for sale in Alder Road, Shifnal, TF11 — £490,000 • 4 bed • 2 bath • 1757 ft²
3 bedroom detached house for sale in Wadlow Drive, Shifnal, TF11 — £465,000 • 3 bed • 2 bath • 1390 ft²
4 bedroom detached house for sale in Hodgson Road, Shifnal, TF11 8FY, TF11 — £420,000 • 4 bed • 2 bath • 1417 ft²














































































































































































































