CM17 0SU - 4 bedroom detached house for sale in Wren street, Harlow, C…

View on Property Piper

4 bedroom detached house for sale in Wren street, Harlow, CM17

Summary - 40 Wren Street, HARLOW CM17 0SU

4 bed 2 bath Detached

Four double bedrooms including master with en suite
This immaculately presented four-bedroom detached home, built in 2019, offers turnkey family living on a very large plot in sought-after Wren Street, Harlow. The house combines a generous living room, contemporary kitchen with central island and dining area, plus French doors that create a strong indoor-outdoor flow to a low-maintenance landscaped garden — ideal for family entertaining.

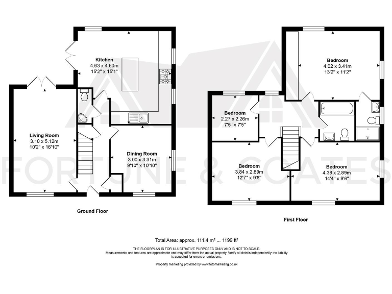
The accommodation is arranged over two storeys and includes a master bedroom with en suite, three further bedrooms and a modern family bathroom. Practical benefits include mains gas central heating, fast broadband and excellent mobile signal, plus a freehold tenure and around 1,199 sq ft of living space.

Buyers should note material local factors: the immediate area records higher crime levels and council tax is described as expensive. Some nearby state schools have mixed Ofsted outcomes, so families may wish to research schooling options carefully. All measurements, services and legal details should be independently verified.

Overall this property will suit buyers seeking a contemporary, low-maintenance family home near local amenities, green space and transport links, with scope to personalise if desired.

Property Details

Brochure Descriptions

Image Descriptions

Floorplan Description

Rooms

Textual Property Features

Detected Visual Features

EPC Details

Nearby Schools

Nearest Bars And Restaurants

,,,,}

Nearest General Shops

,,}

Nearest Grocery shops

,,}

Nearest Supermarkets

,,}

Nearest Religious buildings

,,}

Nearest Medical buildings

,,,}

Nearest Airports

,,}

Nearest Leisure Facilities

,,,,}

Nearest Tourist attractions

,,}

Nearest Train stations

,,,,}

Nearest Bus stations and stops

,,,,}

Nearest Hotels

,,}

Tags

Local Market Stats

Similar Properties

Meta

High Res Images

Compatible Images

Low res Images

Thumbnails

Raw Images

High Res Floorplan Images

Compatible Floorplan Images

Low res Floorplan Images

FloorplanImages Thumbnail

Raw Floorplan Images