Large Georgian High Street building with planning for two shops and two flats, ideal for investor redevelopment.
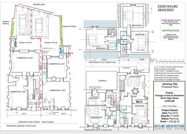
Planning granted for two commercial units and two apartments (ref 23/00124/LBC)
A substantial mixed-use redevelopment in the heart of Jedburgh’s High Street, offered with planning permission to create two commercial units and two flats (Scottish Borders Council ref 23/00124/LBC). The property’s Georgian façade and central location promise strong pedestrian visibility for future retail or leisure uses, while the approved flats include garden access, a balcony/terrace and off-street parking — useful lettings or sales features for investor returns.
The building is extremely large (approximately 2,284 sq ft) and arranged over multiple stories with attic space. The conversion as planned would yield two commercial units with kitchenette and WC facilities plus two flats with multiple bedrooms across lower and attic levels. Broadband and mobile signal are reported as fast and excellent respectively, supporting modern occupier demands.
Buyers should allow for significant refurbishment and fit-out costs to complete the conversion and to modernise dated/internal fabric. No services, fixtures or fittings have been tested and the property will be sold at auction; a buyer’s premium (typically charged at auction) and immediate completion obligations may apply. The location is in a very deprived wider area classification, which may affect rental levels and resale values compared with more affluent markets.
This is a clear development play for purchasers comfortable managing refurbishment, planning conditions and short-term funding requirements. For the right investor or small developer, the combination of central high street positioning, planning consent and off-street parking/garden creates an opportunity to deliver mixed-income commercial and residential units in a historic market town.
Studio flat for sale in 29-31, High Street
Jedburgh, TD8 6DF, TD8 — £150,000 • 1 bed • 1 bath
5 bedroom town house for sale in Jedvale, 2 Canongate, Jedburgh TD8 — £175,000 • 5 bed • 2 bath • 1539 ft²
Leisure facility for sale in 13 Teviot Crescent, Hawick, TD9 9RE, TD9 — £90,000 • 1 bed • 1 bath • 3944 ft²
Commercial property for sale in High Street, Jedburgh, Roxburghshire, TD8 — £58,000 • 1 bed • 1 bath • 570 ft²
3 bedroom maisonette for sale in High Street, Jedburgh, Roxburghshire, TD8 — £115,000 • 3 bed • 1 bath • 1518 ft²
Commercial property for sale in High Street, Jedburgh, Roxburghshire, TD8 — £169,000 • 2 bed • 1 bath • 1270 ft²






















































































