Spacious 2-bed second-floor flat with private terrace and excellent transport links..
Private enclosed terrace ideal for entertaining
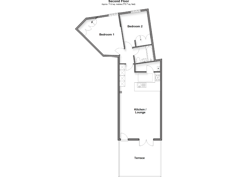
Open-plan lounge/kitchen with skylight and spotlights
Two double bedrooms — 872 sq ft overall
Long lease: 119 years remaining
Service charge approx £1,400pa; ground rent £200pa
Single bathroom only; check family suitability
High local crime rate and area deprivation
Excellent transport links, fast broadband and mobile signal
This bright second-floor apartment in central Croydon offers generous living space across an L-shaped layout. The open-plan lounge/kitchen opens onto a private, enclosed terrace — a rare outdoor space for city flats and ideal for socialising or quiet evenings.
At about 872 sq ft the two double bedrooms are roomy for a flat this size, and the single bathroom and separate utility provide practical day-to-day living. The property includes a long lease (119 years remaining) and fast broadband and excellent mobile signal — convenient for commuters and home workers.
Practical costs include an average service charge of £1,400pa and a small ground rent of £200pa; purchasers should also confirm lease and service details with their solicitor. The location is exceptionally well connected to Croydon town centre shops, bars, restaurants and public transport, making it suitable as a starter home or a lettable investment.
Buyers should note the wider area is classified as deprived with a high nearby crime rate; this may affect long-term resale or rental demand. Interested parties must verify all measurements, tenure details and the working condition of fixtures and services.
1 bedroom apartment for sale in Overton's Yard, Old Town, Croydon, CR0 — £210,000 • 1 bed • 1 bath • 459 ft²
2 bedroom flat for sale in Church Street, Croydon, Surrey, CR0 — £231,500 • 2 bed • 1 bath • 872 ft²
2 bedroom flat for sale in Tamworth Road, Croydon, CR0 — £290,000 • 2 bed • 1 bath • 880 ft²
2 bedroom ground floor flat for sale in Scarbrook Road, Croydon, CR0 — £270,000 • 2 bed • 1 bath • 604 ft²
2 bedroom property for sale in High Street, Central Croydon, Croydon, CR0 — £390,000 • 2 bed • 2 bath • 760 ft²
2 bedroom apartment for sale in Woodstock Road, East Croydon, Croydon, Surrey, CR0 — £400,000 • 2 bed • 1 bath • 647 ft²














































