**Standout Features:**
- Ground floor flat with private entrance
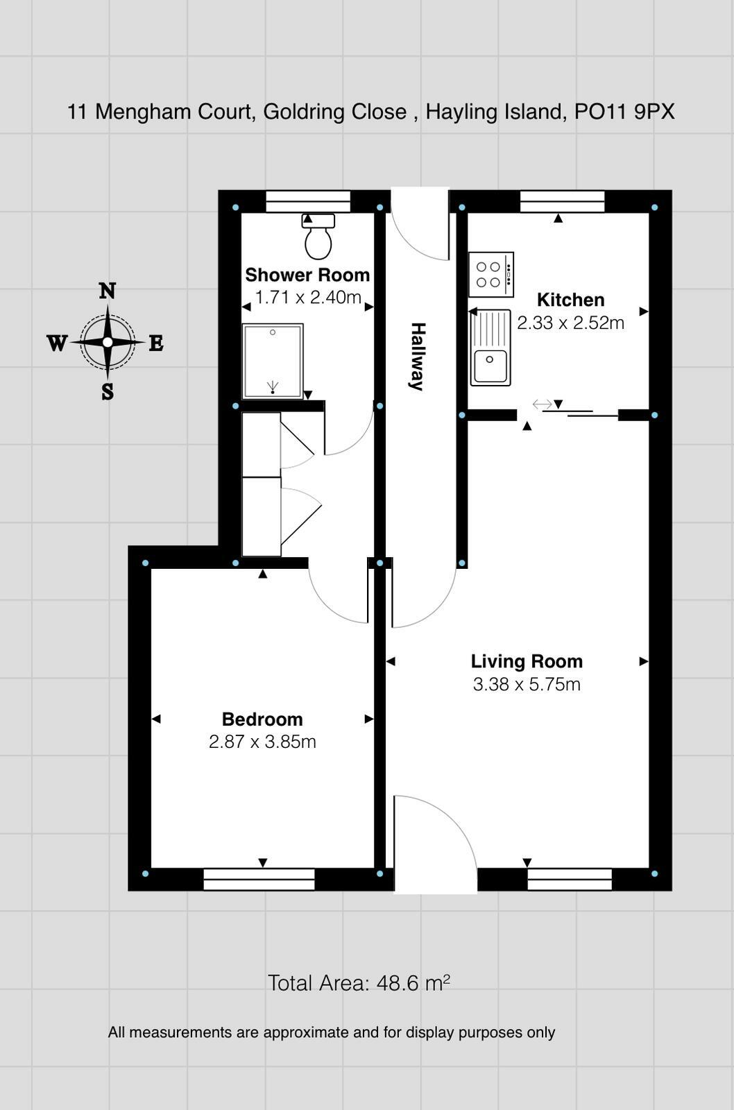
- One double bedroom (12'0" x 9'5")
- Lounge/Diner leads to a private patio and communal gardens
- Modern shower room with electric heating and double glazing
- Emergency pulleys to most rooms for 24/7 careline support
- Chain-free sale
- Off-street parking availability
- Close to Mengham shops and amenities
This charming ground floor flat in a desirable retirement complex perfectly blends comfort and convenience. With a spacious lounge/diner that opens onto your own patio area, it's ideal for enjoying outdoor living or tending to your plants. The well-appointed kitchen and modern shower room complement the cozy double bedroom, making this space welcoming and functional. The flat features an efficient electric heating system and double-glazed windows throughout. The presence of emergency pull cords in most rooms adds an essential layer of security and peace of mind.
Situated in a tranquil community with fast broadband and excellent mobile service, this home is within walking distance of local shops while offering easy access to well-kept communal gardens and off-street parking. Though the interior has a traditional feel, it holds potential for personalization to suit your taste. With no forward chain, this could be your perfect opportunity for a comfortable retirement living, from which you can enjoy the local amenities and a serene lifestyle. Don’t miss out—opportunities like this in a peaceful setting rarely last!
2 bedroom flat for sale in Goldring Close, Hayling Island, Hampshire, PO11 — £165,000 • 2 bed • 1 bath • 721 ft²
2 bedroom flat for sale in Mengham Court, Goldring Close, Hayling Island, Hampshire, PO11 — £175,000 • 2 bed • 1 bath • 647 ft²
2 bedroom flat for sale in St Leonards Avenue, Hayling Island, PO11 — £239,995 • 2 bed • 2 bath • 635 ft²
1 bedroom flat for sale in Dilkusha Court, 124 Sea Front, HAYLING ISLAND, Hampshire, PO11 — £190,000 • 1 bed • 1 bath • 434 ft²
1 bedroom ground floor flat for sale in Bellair House, Havant, PO9 — £89,000 • 1 bed • 1 bath • 390 ft²
3 bedroom flat for sale in Westfield Avenue, HAYLING ISLAND, Hampshire, PO11 — £180,000 • 3 bed • 1 bath • 759 ft²










































