**Standout Features:**
- Seven serviced building plots with full planning permission for single detached homes
- Unique, architect-designed plans with a combination of contemporary design and character
- Stunning countryside views and expansive rural setting
- Excellent accessibility to Brechin and surrounding areas
- Plot size ranging from 753 m² (0.0753 hectares) to larger options available
**Summary:**
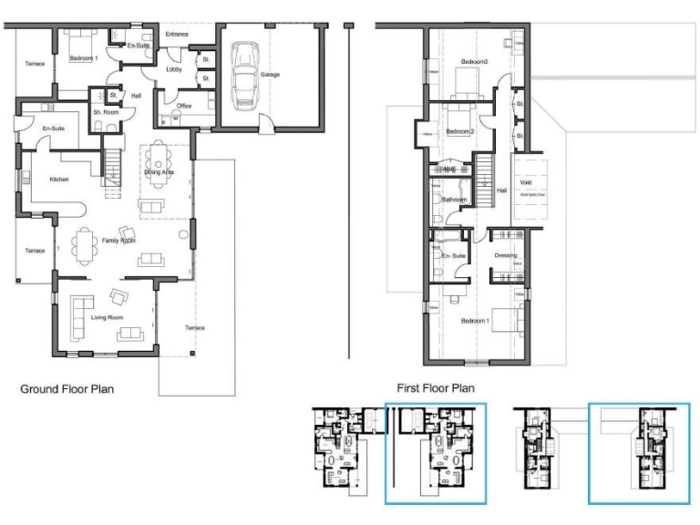
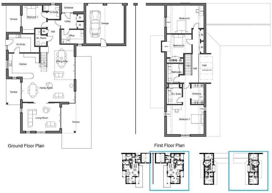
Seize this exceptional opportunity to invest in one of seven serviced building plots at Stannochy Farm, Brechin, each with full planning permission for a modern detached home. These thoughtfully designed plots offer a perfect canvas for self-build residential properties, nestled in the serene countryside with breathtaking views. With detailed architectural drawings available, potential homeowners can envision creating spacious, high-quality family dwellings that harmonize with the natural landscape.
Enjoy immediate access to Brechin and local amenities while relishing the tranquility of rural living, perfect for families or those seeking a peaceful retreat. Each plot provides ample flexibility in design and landscaping, making it an ideal choice for creative minds looking to craft their dream home. This unique offering is likely to attract considerable interest, so don’t miss the chance to build the home you’ve always desired in this picturesque setting!
Plot for sale in Stannochy Farm, Brechin, Angus, DD9 — £140,000 • 1 bed • 1 bath • 2503 ft²
Plot for sale in Stannochy Farm, Brechin, Angus, DD9 — £130,000 • 1 bed • 1 bath • 11099 ft²
Plot for sale in Stannochy Farm, Brechin, Angus, DD9 — £130,000 • 1 bed • 1 bath • 20226 ft²
Plot for sale in Stannochy Farm, Brechin, Angus, DD9 — £145,000 • 1 bed • 1 bath • 10584 ft²
Plot for sale in Stannochy Farm, Brechin, Angus, DD9 — £130,000 • 1 bed • 1 bath
Land for sale in Park Cottage , Careston, Brechin, Angus, DD9 — £95,000 • 1 bed • 1 bath






































