Affordable two-bedroom terrace needing renovation, close to A595 and local amenities.
Two double bedrooms on the first floor
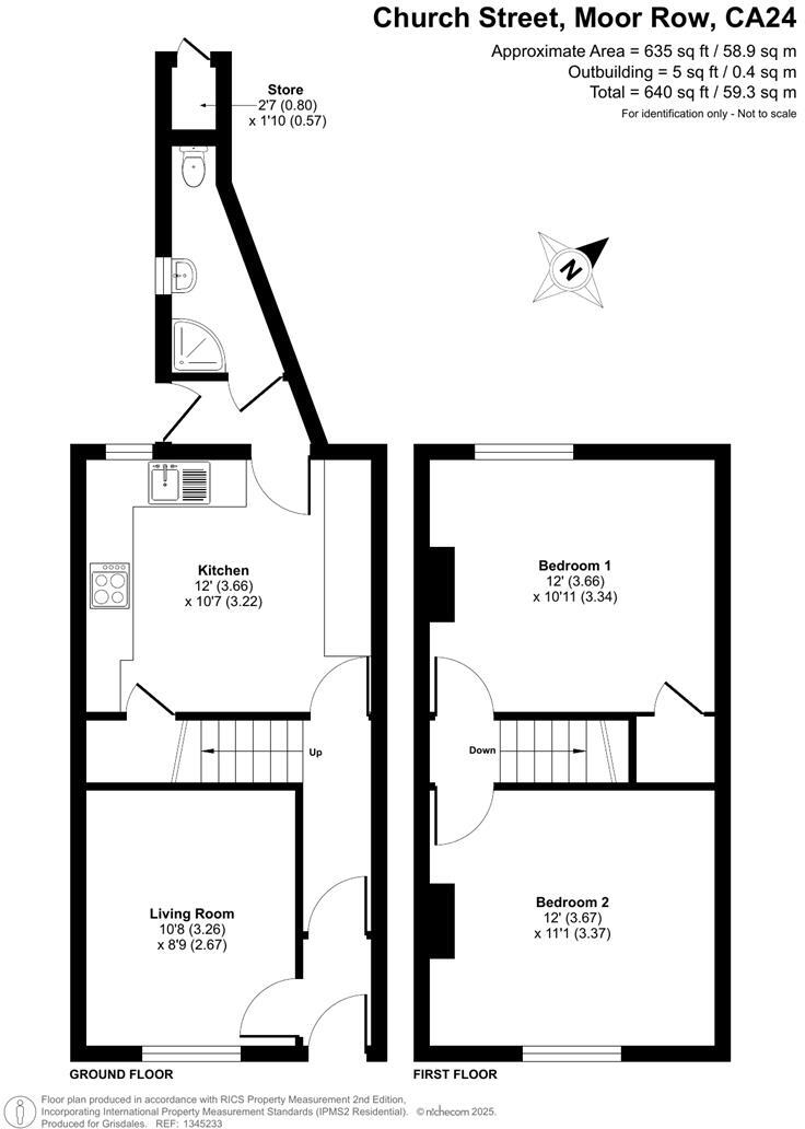
A compact two-bedroom mid-terrace in Moor Row, ideal for a first-time buyer or investor prepared to renovate. The house offers two double bedrooms, a generous lounge and a well-proportioned kitchen, plus small front courtyard and rear yard with store. Mains gas central heating is installed and the combi boiler appears to be a newer model, though none of the services have been tested.
The property is presented in need of TLC and requires cosmetic and likely some fabric work: dated interiors, worn fixtures, draughty areas and assumed uninsulated stone walls. The EPC is D and the house comes with a very small overall footprint, so buyers should plan budgets for updating and insulating where required.
Set on a quiet village street with on-street parking, the location sits close to the A595 and is central for Whitehaven and Egremont. Local primary and secondary schools are nearby, and the property is freehold with very low council tax banding, making it a low-running-cost entry onto the housing ladder or a renovation project for rental income.
2 bedroom terraced house for sale in Dalzell Street, Moor Row, CA24 — £74,950 • 2 bed • 1 bath • 685 ft²
3 bedroom end of terrace house for sale in Penzance Street, Moor Row, CA24 — £145,000 • 3 bed • 1 bath • 1064 ft²
2 bedroom terraced house for sale in Church Street, Moor Row, CA24 3JG, CA24 — £120,000 • 2 bed • 2 bath • 1400 ft²
2 bedroom terraced house for sale in Todholes Road, Cleator Moor, CA25 — £55,000 • 2 bed • 1 bath • 1184 ft²
2 bedroom terraced house for sale in Birks Road, Cleator Moor, CA25 — £69,950 • 2 bed • 1 bath • 787 ft²
2 bedroom terraced house for sale in Ennerdale Road, Cleator Moor, Cumbria, CA25 — £60,000 • 2 bed • 1 bath






































































