Bi-fold doors, 80ft garden and parking; short walk to station and country park.
Three double bedrooms, suitable for family use
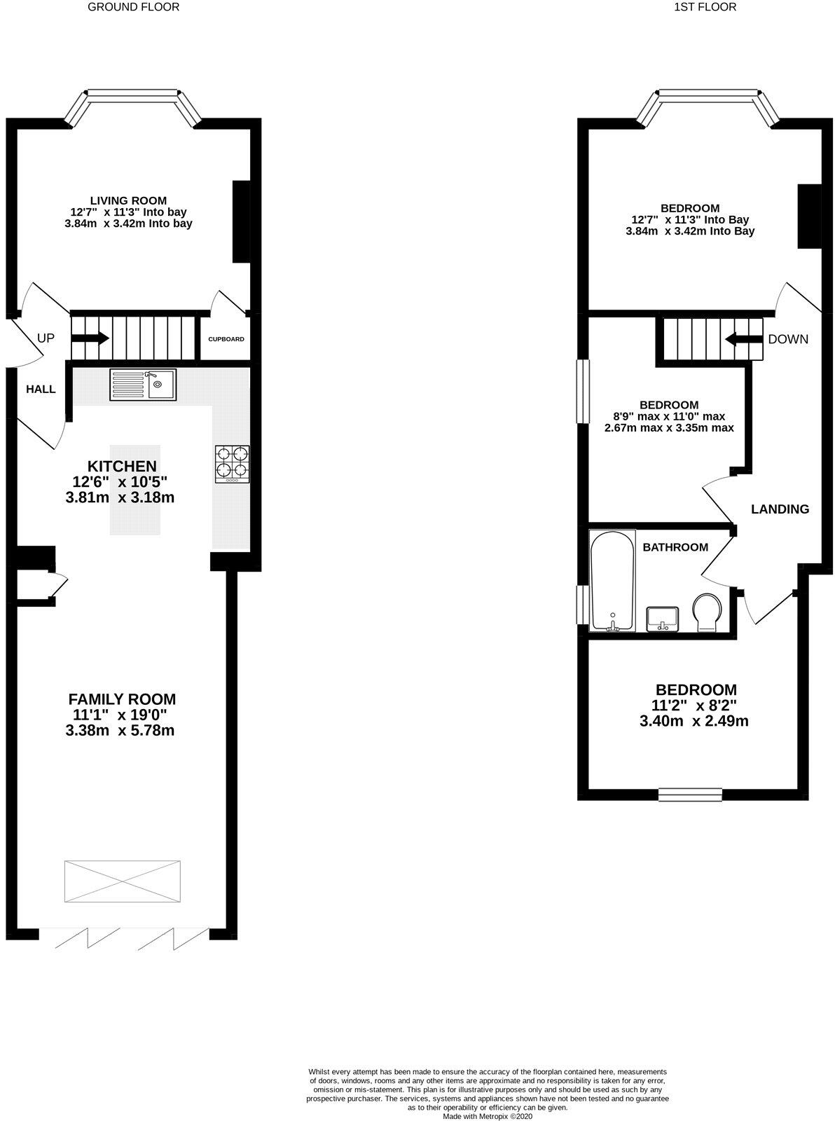
This extended three-bedroom semi offers modern, family-focused living within easy reach of Aldershot station and Brickfields Country Park. The rear extension creates an open-plan kitchen, dining and living space with a roof lantern and bi-fold doors that flow onto an 80 ft garden backing onto fishing lakes — ideal for indoor-outdoor family days and safe play.
Upstairs are three double bedrooms and a fully tiled contemporary family bathroom. Practical features include off-street parking for two cars, double glazing installed post-2002, mains gas central heating and an EPC rating of C (73), keeping running costs reasonable for the area.
Notable constraints are the property’s overall modest size (about 810 sq ft) and a single bathroom, which may feel tight for larger families. The cavity walls are as built with no added insulation (assumed), so there is scope — and cost — to improve thermal efficiency. Overall the home is presented to a modern standard but buyers should expect typical mid‑20th century construction maintenance and potential upgrade work to maximise long-term comfort and value.
For families seeking a ready-to-live-in, well-located home with a large garden and strong local schools nearby, this semi-detached house offers immediate practicality with clear improvement potential for future energy and space optimisation.
3 bedroom semi-detached house for sale in Jubilee Road, Aldershot, Hampshire, GU11 — £450,000 • 3 bed • 2 bath • 802 ft²
3 bedroom semi-detached house for sale in Jubilee Road, Aldershot, Hants, GU11 — £400,000 • 3 bed • 1 bath • 786 ft²
3 bedroom semi-detached house for sale in Cranmore Gardens, Aldershot, Hampshire, GU11 — £575,000 • 3 bed • 2 bath • 1308 ft²
3 bedroom detached house for sale in Highfield Gardens, Aldershot, Hampshire, GU11 — £700,000 • 3 bed • 2 bath • 1316 ft²
3 bedroom semi-detached house for sale in Calvert Close, Aldershot, Hampshire, GU12 — £425,000 • 3 bed • 2 bath • 817 ft²
4 bedroom detached house for sale in Northbrook Road, Aldershot, Hampshire, GU11 — £650,000 • 4 bed • 3 bath • 1628 ft²










































