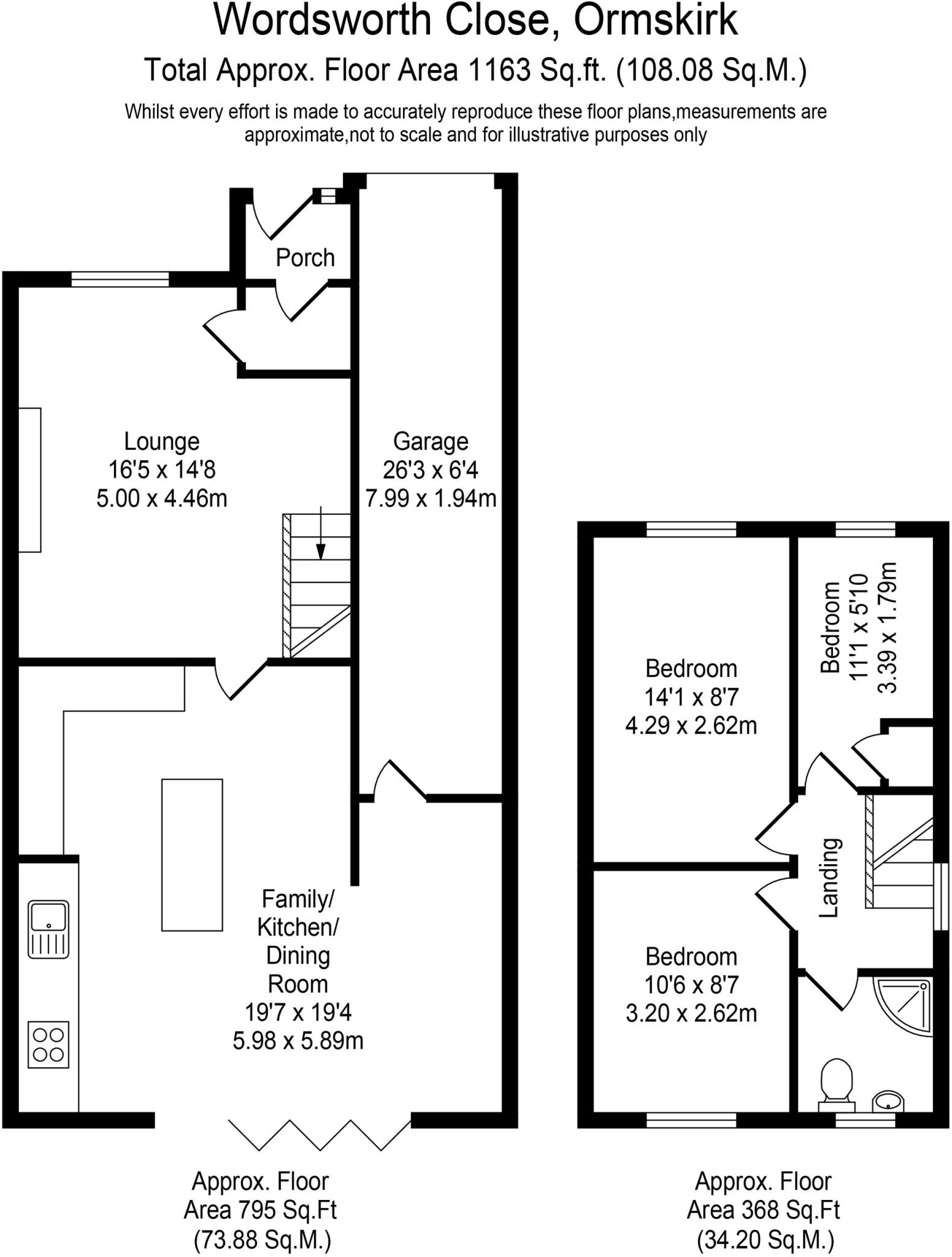
Move-in ready three-bedroom home with garage and enclosed garden.
- Recently renovated throughout, ready to move into
- Open-plan kitchen, dining and family room with bi-fold doors
- Integrated garage and driveway parking for convenience
- Private fully enclosed rear lawn, low-maintenance outdoor space
- Single family bathroom only; three bedrooms share one bathroom
- EPC rating D — lower energy performance than newer builds
- Small plot despite generous internal footprint circa 1,163 sqft
- No onward chain; freehold tenure
A thoughtfully modernised three-bedroom semi-detached house on a quiet cul-de-sac, ready to move into with no onward chain. The ground floor offers a separate lounge and a generous open-plan kitchen, dining and family room with bi-fold doors that link seamlessly to a private, enclosed lawned garden. The kitchen is fitted with integrated appliances, quartz worktops and a breakfast bar, making the rear space well suited to family life and entertaining.
Upstairs provides three usable bedrooms and a contemporary family bathroom with a quartz-topped vanity. The main bedroom includes built-in storage; the third bedroom works well as a nursery or home office. Practical extras include driveway parking, an integrated garage for storage or potential reconfiguration, and double glazing throughout. The property sits on a modest plot in an affluent, low-crime area with fast broadband and excellent mobile signal.
This home is well placed for local amenities and schools, plus direct rail links to larger centres and easy motorway access. Recently renovated, it requires no immediate work, but the EPC rating of D is a factual consideration for buyers conscious of energy performance. Overall this is a low-maintenance, modern family option or a straightforward purchase for first-time buyers wanting a ready-to-live-in home.
3 bedroom semi-detached house for sale in Bath Springs, Ormskirk, L39 — £280,000 • 3 bed • 1 bath • 1112 ft²
3 bedroom detached house for sale in Stone Yard Close, Ormskirk, L39 — £450,000 • 3 bed • 2 bath • 1416 ft²
3 bedroom semi-detached bungalow for sale in Ash Close, Ormskirk, L39 — £310,000 • 3 bed • 1 bath • 955 ft²
3 bedroom semi-detached house for sale in Ludlow Drive, Ormskirk, Lancashire, L39 — £250,000 • 3 bed • 1 bath • 856 ft²
3 bedroom semi-detached house for sale in Garnett Green, Ormskirk, Lancs, L39 3NL, L39 — £325,000 • 3 bed • 1 bath • 917 ft²
3 bedroom semi-detached house for sale in Chapel Street, Ormskirk, L39 — £275,000 • 3 bed • 1 bath • 908 ft²


























































