SE5 9AU - 4 bedroom terraced house for sale in Bicknell Road, London,…

View on Property Piper

4 bedroom terraced house for sale in Bicknell Road, London, SE5

Summary - 22 BICKNELL ROAD LONDON SE5 9AU

4 bed 3 bath Terraced

**Standout Features:**
- Recently renovated Victorian terrace
- Four spacious double bedrooms
- Three modern bathrooms
- Stylish open-plan kitchen and dining area
- Private, landscaped garden
- Loft conversion for added versatility
- High ceilings and original period features
- Excellent transport links and local amenities nearby

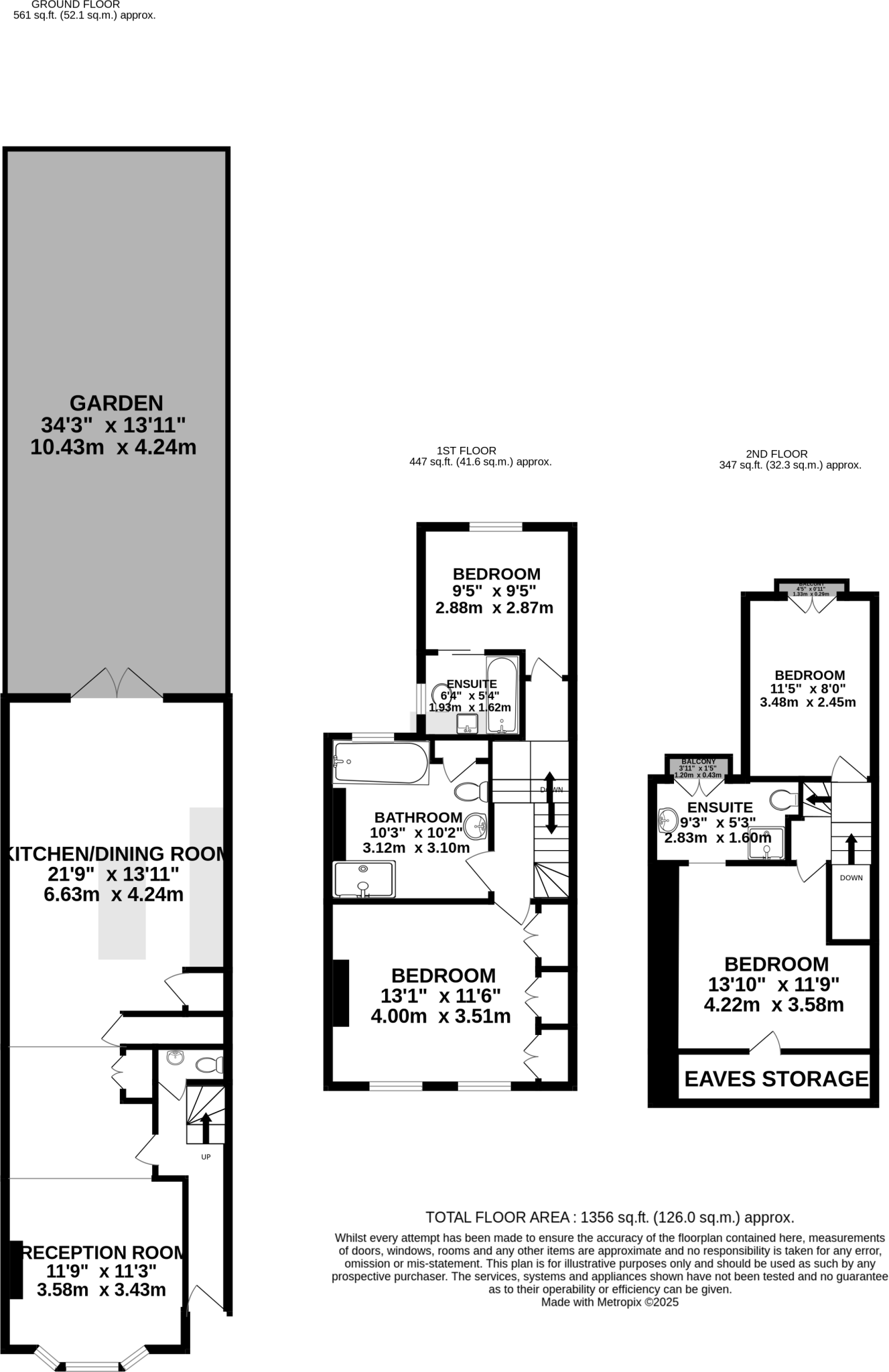
This exquisite four-bedroom terraced home on Bicknell Road seamlessly blends Victorian charm with modern elegance. Newly renovated to a high standard, it offers ample space for family living across three levels, encompassing 1356 sq ft. The heart of this home is its expansive open-plan kitchen and dining area, complete with large, steel-framed doors that flood the space with natural light and lead to a beautifully landscaped garden—ideal for entertaining or quiet relaxation.

With four generously-sized double bedrooms and three modern bathrooms, this property provides the perfect sanctuary for families or professionals seeking flexibility and comfort. The clever loft conversion enhances the property’s versatility, while notable architectural details like high ceilings and period fireplaces add character. Set in a vibrant neighborhood with excellent amenities and transport links to Herne Hill, Denmark Hill, and Brixton, this home is your gateway to upscale inner-city living. Don’t miss out on this rare opportunity—experience the perfect balance of classic style and modern comfort in a sought-after location.

Property Details

Brochure Descriptions

Image Descriptions

Floorplan Description

Rooms

Textual Property Features

Detected Visual Features

Nearby Schools

Nearest Bars And Restaurants

,,,,}

Nearest General Shops

,,}

Nearest Grocery shops

,,}

Nearest Supermarkets

,,}

Nearest Religious buildings

,,}

Nearest Medical buildings

,,,}

Nearest Airports

,,}

Nearest Leisure Facilities

,,,,}

Nearest Tourist attractions

,,}

Nearest Train stations

,,,,}

Nearest Bus stations and stops

,,,,}

Nearest Hotels

,,}

Tags

Local Market Stats

AirBnB Data

Similar Properties

Meta

High Res Images

Compatible Images

Low res Images

Thumbnails

Raw Images

High Res Floorplan Images

Compatible Floorplan Images

Low res Floorplan Images

FloorplanImages Thumbnail

Raw Floorplan Images