Long lease approx. 136 years remaining
Allocated garage parking plus visitor spaces
On doorstep of town centre and mainline station
Electric storage heating; higher running costs likely
Service charge approx. £2,153.25 per year
Communal gardens and maintained grounds
Upcoming communal works paid for by current owner
Local area records higher-than-average crime levels
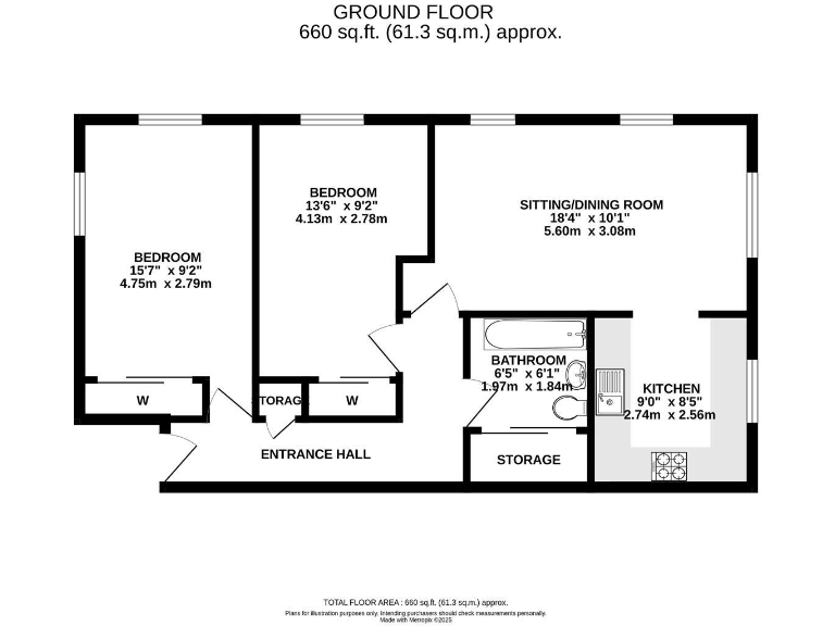
Bright, well-proportioned two-bedroom apartment on the second/top floor, ideal for first-time buyers or buy-to-let investors seeking a town-centre location. Large windows and a dual-aspect living room deliver plenty of natural light and far-reaching views across Burgess Hill. The long lease (136 years) and allocated garage parking add practical value and peace of mind.
The layout includes two double bedrooms with built-in storage, a modern fitted kitchen opening to the sitting/dining room, and a contemporary bathroom. The block sits in maintained communal gardens and benefits from visitor parking and a communal garage with an allocated space. Upcoming communal works have reportedly been paid for by the current owner, so no further immediate contribution is expected from a buyer.
Practical considerations: heating is via electric storage heaters and the property uses electricity as its main fuel, which can be more expensive than gas. The annual service charge is approximately £2,153.25 and council tax is low (Band B). The local area records higher crime levels than average; buyers should consider security and insurance implications.
Overall this is a convenient, low-maintenance flat in a mature purpose-built development, close to Burgess Hill town centre and the mainline station. It will suit a commuter, couple, or investor looking for a straightforward purchase with long lease tenure and allocated parking, while accepting the trade-offs of electric heating and communal service costs.
2 bedroom apartment for sale in Church Road, Burgess Hill, RH15 — £200,000 • 2 bed • 1 bath • 905 ft²
2 bedroom flat for sale in Wolstonbury Court, Burgess Hill, RH15 — £210,000 • 2 bed • 1 bath • 592 ft²
2 bedroom flat for sale in Church Close, Burgess Hill, RH15 — £245,000 • 2 bed • 1 bath • 418 ft²
2 bedroom flat for sale in Wolstonbury Court, Burgess Hill, RH15 — £225,000 • 2 bed • 1 bath • 692 ft²
1 bedroom flat for sale in Lower Church Road, Burgess Hill, RH15 — £215,000 • 1 bed • 1 bath • 681 ft²
2 bedroom flat for sale in Station Road, Burgess Hill, RH15 — £245,000 • 2 bed • 1 bath • 800 ft²










































































