Chain-free modern flat with garden, parking and close rail links.
Chain-free one-bedroom ground-floor apartment
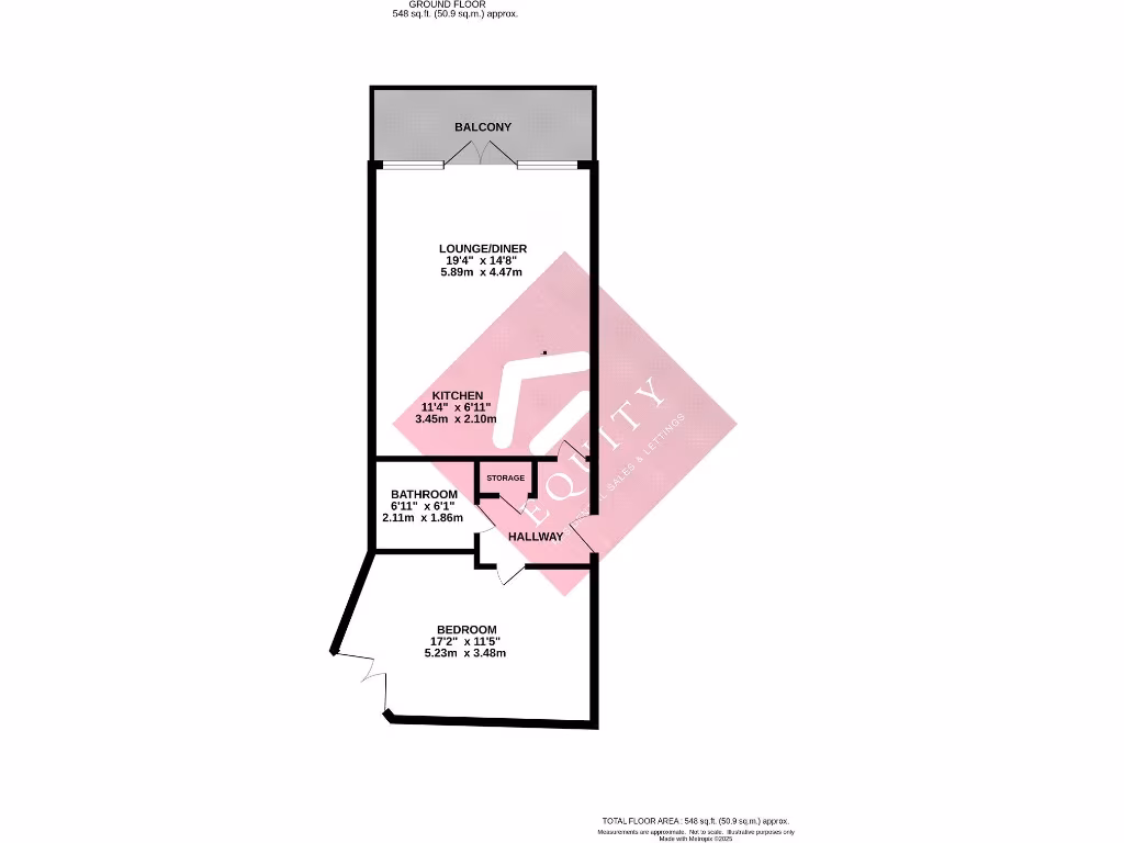
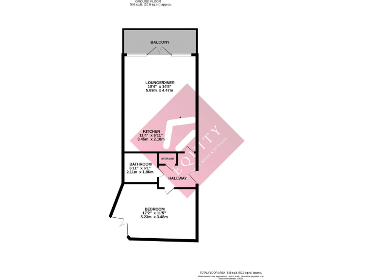
A bright, chain-free one-bedroom ground-floor apartment in a modern three-storey development, well placed for Enfield Chase station and Enfield Town. The open-plan 19ft lounge/diner with integrated kitchen and large windows creates a light, flexible living space that suits first-time buyers or commuters. You also get a private front patio and a rear garden — rare for a ground-floor flat — plus one allocated underground parking space.
The building was built in the early 2000s and benefits from double glazing, gas central heating and a video entryphone system. The flat is offered with a long lease (107 years remaining) and low maintenance communal areas, so it’s straightforward to move into and manage. Local amenities, schools rated Good to Outstanding and frequent rail connections make daily life convenient.
Notable practical points are that the property is leasehold (ground rent £200) and broadband speeds are average. The apartment is an average size for a one-bedroom (approx. 548 sq ft) and the area records average crime levels. Overall this is a practical, low-upkeep home for a first-time buyer or buy-to-let investor seeking a commuter-friendly base with outside space and parking.
1 bedroom apartment for sale in Tempsford Close, Enfield Town, EN2 — £242,500 • 1 bed • 1 bath • 419 ft²
1 bedroom flat for sale in Firbank Close, Enfield, EN2 — £290,000 • 1 bed • 1 bath • 423 ft²
1 bedroom apartment for sale in Gladbeck Way, Enfield, Middlesex, EN2 — £260,000 • 1 bed • 1 bath • 411 ft²
1 bedroom apartment for sale in Waverley Road, Enfield, Middlesex, EN2 — £255,000 • 1 bed • 1 bath • 356 ft²
1 bedroom apartment for sale in Tempsford Close, Enfield, Middlesex, EN2 — £245,000 • 1 bed • 1 bath • 409 ft²
2 bedroom apartment for sale in Eaton Road, Enfield, Middlesex, EN1 — £345,000 • 2 bed • 2 bath • 740 ft²










































































