Bright two-bedroom close to stations, parkland and riverside amenities.
Full-width balcony overlooking communal garden
Allocated off-street parking space included
Communal gym, concierge and roof terrace access
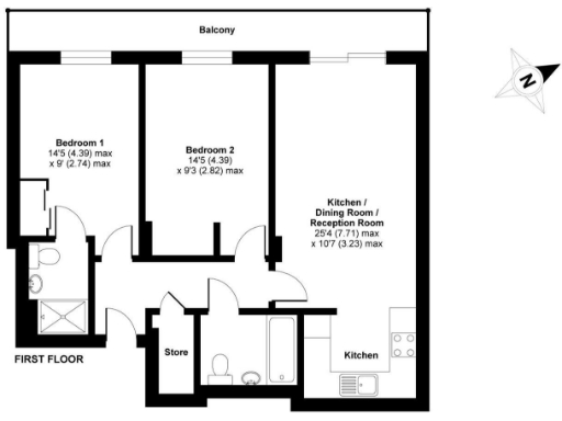
Approx. 695 sqft GIA; 25ft reception with open-plan kitchen
Leasehold sale with ~141 years remaining; shared-ownership history noted
Service charge £4,560.48pa (above average)
Ground rent £300pa; Council Tax Band F (expensive)
Communal electric heating system; confirm running costs
This bright two-bedroom first-floor apartment in Devonshire House offers contemporary living moments from Putney and East Putney stations. A full-width balcony overlooks the communal garden and extends the usable living space, while an open-plan reception and integrated kitchen create a flexible 25-foot social area. The property includes an allocated off-street parking space and access to communal amenities: gym, concierge and roof terrace.
The apartment benefits from modern construction (2007–2011), good insulation and double glazing, and a communal electric heating/hot-water system that contributes to a very good energy-efficiency rating. Accommodation comprises a main bedroom with fitted wardrobe and en-suite shower room, a generous second bedroom and a separate bathroom. The building has lift access and the flat totals approximately 695 sq ft (GIA).
Important practical points: the sale is leasehold and currently part-owned by a housing association but offered as an open-market sale; the buyer will receive the full leasehold title on completion. The lease has about 141 years remaining. Service charges are relatively high (£4,560.48pa), ground rent is £300pa and council tax is in Band F. Heating appears to be via communal electricity and there are no individual gas connections—buyers should confirm heating specifics and running costs.
2 bedroom apartment for sale in Devonshire House, 50 Putney Hill, London, SW15 — £600,000 • 2 bed • 2 bath • 723 ft²
2 bedroom apartment for sale in Devonshire House, 50 Putney Hill, London, SW15 — £600,000 • 2 bed • 2 bath • 744 ft²
2 bedroom flat for sale in Putney Hill,
Putney Hill, SW15 — £261,000 • 2 bed • 2 bath • 721 ft²
2 bedroom apartment for sale in Carlton Drive, London, SW15 — £775,000 • 2 bed • 2 bath • 976 ft²
2 bedroom flat for sale in Nucleus Apartments, 204, West Hill, Putney, SW15 — £410,000 • 2 bed • 2 bath • 646 ft²
2 bedroom flat for sale in Westleigh Avenue, London, SW15 — £585,000 • 2 bed • 2 bath • 827 ft²














































