Full planning consent in a village edge setting — groundwork started, ready for completion..
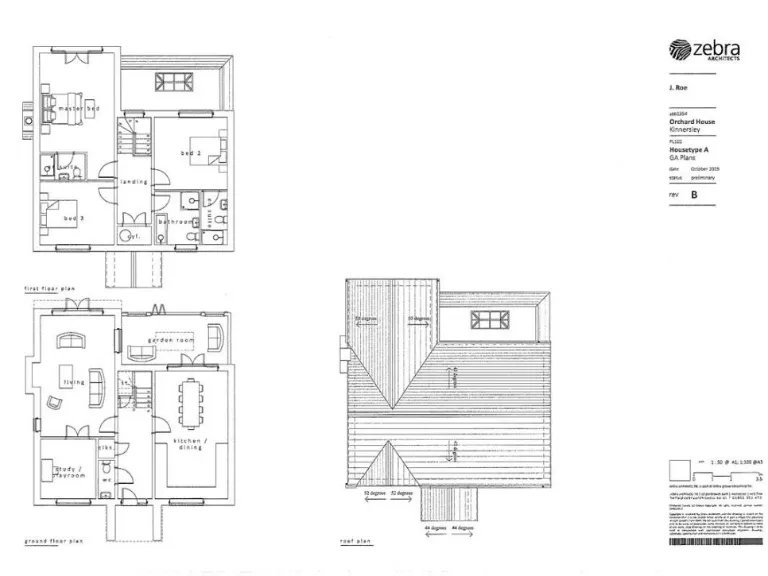
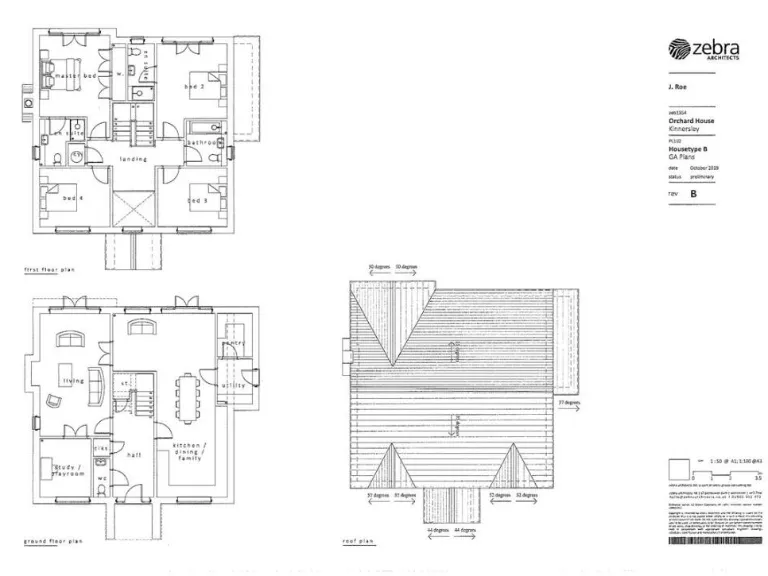
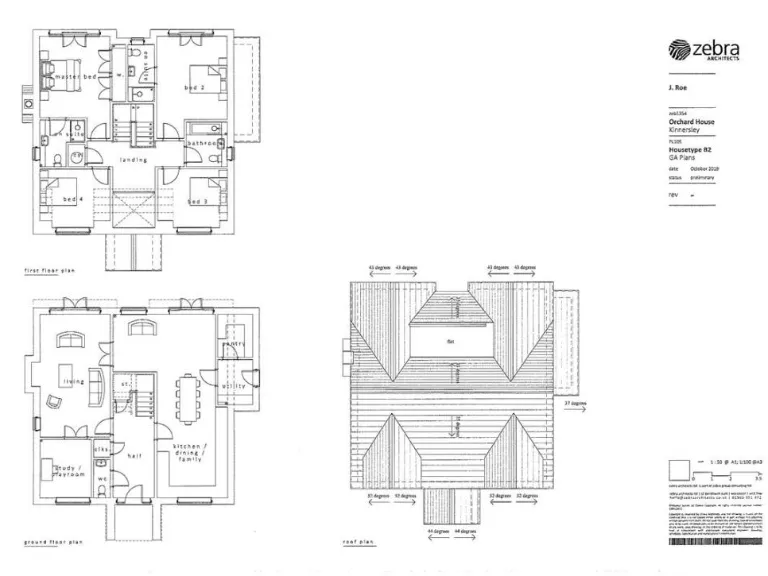
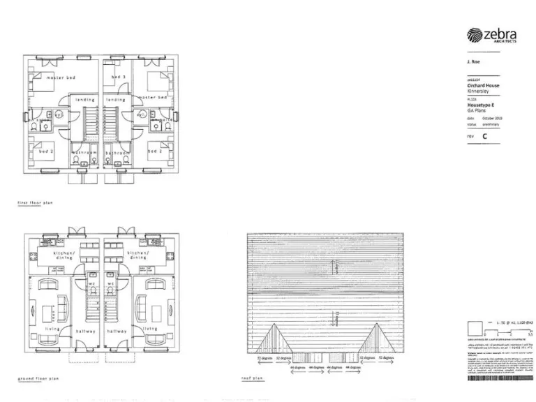
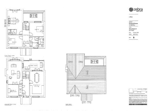
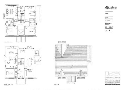
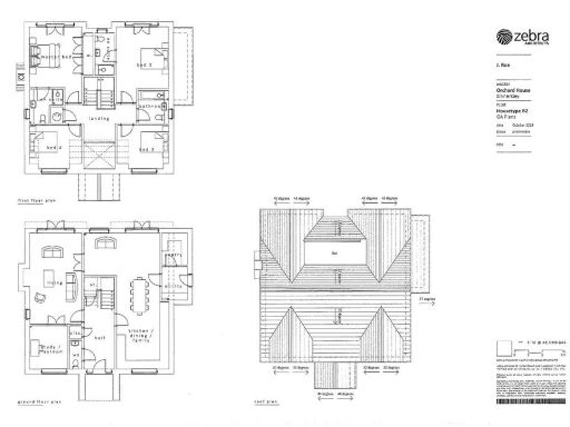
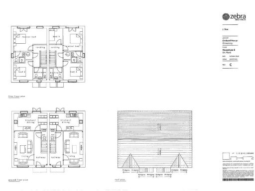
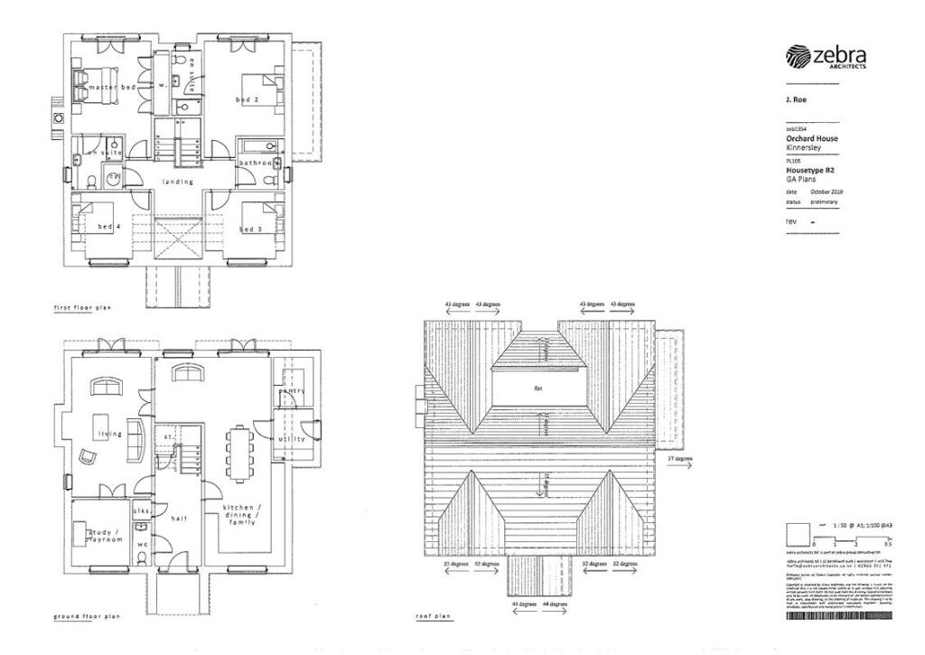
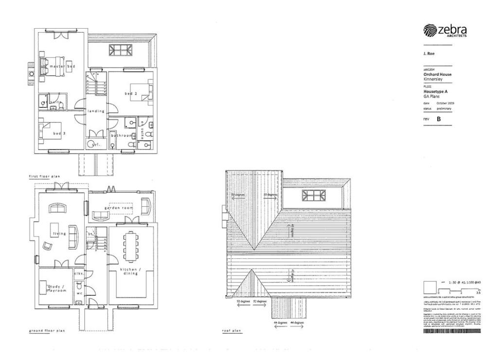
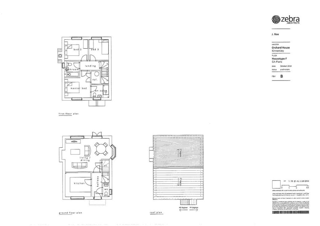
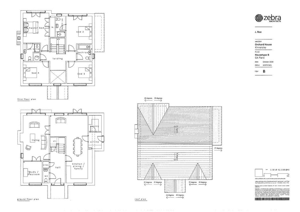
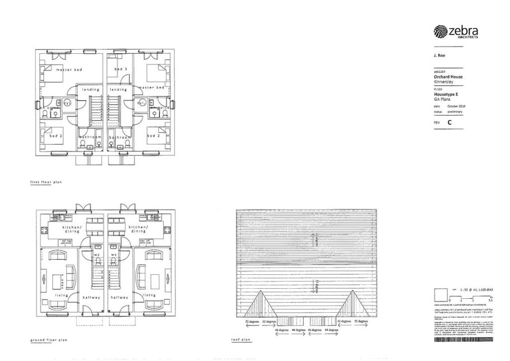
- Full planning consent for seven homes (five detached, two semi-detached)
- Some groundworks, drainage runs and 185mm electrical cable already in place
- S106 affordable housing contribution paid and discharged
- Mains water nearby; electricity and water require individual plot connections
- Driveway and internal site access require enhancement to serve all plots
- No mains gas; fibre optic broadband connected (local speeds reported slow)
- Hamlet location with good road links; Hanley Castle High School catchment
- Local crime reported above average; rural village setting
A rare full-consent development opportunity on the edge of Kinnersley with planning for seven homes: five detached and a pair of semi-detached houses. Some groundworks, drainage runs and a four-core electrical cable are already in place, reducing initial site preparation time. S106 contributions for affordable housing have been paid and discharged.
The site sits in a quiet village/hamlet setting with easy road links to Upton-upon-Severn, Worcester and the M50. Hanley Castle High School and local amenities are within easy reach, and fibre optic broadband is present on site. The electricity supply and mains water are available nearby but will require final connections to individual plots; there is no mains gas.
Suitable for a small house-builder or investor aiming to deliver modern family homes in a prosperous rural area. Note material items: driveway and internal site access need extending/improving, drainage will need enhancement for the additional dwellings, electricity spurs must be connected and water finalised. Crime levels are reported above average locally, and the location is a small hamlet rather than a larger village centre.
Land for sale in A Residential Development Opportunity, The Paddocks, Holly Green, Upton upon Severn, Worcestershire, WR8 — £700,000 • 1 bed • 1 bath • 747 ft²
2 bedroom detached bungalow for sale in The Lilacs, Kinnersley, Severn Stoke, Worcestershire. WR8 9JR, WR8 — £695,000 • 2 bed • 1 bath • 991 ft²
Residential development for sale in Crossway Green, Stourport-on-Severn, DY13 — £950,000 • 13 bed • 9 bath • 2712 ft²
Residential development for sale in Crossway Green, Stourport-on-Severn, DY13 — £125,000 • 3 bed • 2 bath
Land for sale in Broadgrove Nursery Farm Shop, Eckington Road, Birlingham, WR10 — £600,000 • 1 bed • 1 bath
Residential development for sale in Crossway Green, Stourport-on-Severn, DY13 — £150,000 • 4 bed • 2 bath


















































