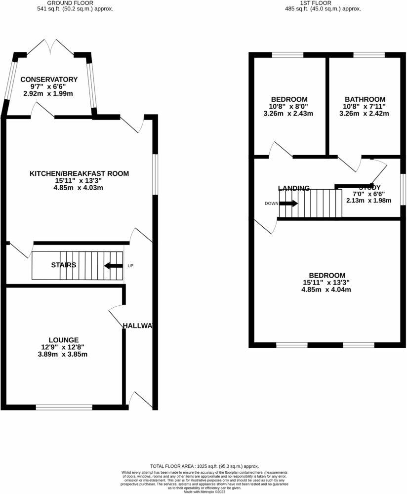
**Standout Features:**
- Potential to convert into 3 bedrooms
- Spacious kitchen/diner with modern NEFF appliances
- Conservatory and cellar for additional space
- Off-street parking and garden
- Close proximity to Mirfield town centre
- Recently fitted double glazing
**Concerns:**
- Average crime rate in the area
- Requires some updates to maximize potential
This substantial two-story semi-detached home presents a fantastic opportunity for families and first-time buyers, offering the potential for three bedrooms and ample living space with a functional layout. The large kitchen diner is perfect for gatherings, while the adjacent conservatory bathes the area in natural light, creating a welcoming atmosphere. Each of the two spacious bedrooms provides comfort, and there’s a fully fitted study that could easily serve as a third bedroom.
Situated just a short walk from Mirfield town centre, this property features gardens to the front and rear, offering a serene outdoor escape. With its off-street parking and cellar rooms, there is plenty of room for family needs and future renovations. Recent upgrades, including double-glazed windows, enhance the property’s appeal. However, potential buyers should note the average crime rate in the area but can find comfort in the community and amenities nearby. Don’t miss the chance to make this house your home and capitalize on its impressive future potential!
2 bedroom semi-detached house for sale in Sunny Bank Avenue, Mirfield, WF14 — £199,950 • 2 bed • 1 bath • 657 ft²
2 bedroom semi-detached house for sale in Dunbottle Lane, Mirfield, West Yorkshire, WF14 — £200,000 • 2 bed • 2 bath • 920 ft²
3 bedroom terraced house for sale in Old Bank Road, Mirfield, WF14 — £200,000 • 3 bed • 1 bath • 884 ft²
3 bedroom terraced house for sale in Old Bank Road, Mirfield, WF14 — £150,000 • 3 bed • 1 bath • 786 ft²
3 bedroom semi-detached house for sale in Manor Park, Mirfield, WF14 — £260,000 • 3 bed • 1 bath • 1141 ft²
3 bedroom semi-detached house for sale in Bracken Grove, Mirfield, West Yorkshire, WF14 — £230,000 • 3 bed • 1 bath • 836 ft²










































































