**Standout Features:**
- Fully furnished, modern one-bedroom apartment
- Located in iconic Southbank Tower, with expansive city views
- Access to high-end amenities including an indoor swimming pool, gym, and rooftop terrace
- Convenient transport links to Central London and nearby attractions
- Prime location near cultural landmarks like the Royal Festival Hall and Shakespeare’s Globe
- Community heating system and high-speed lift access
**Key Considerations:**
- Leasehold tenure with an annual service charge of £8,256
- High crime rate in the area
- Very slow broadband speeds
- Expensive council tax
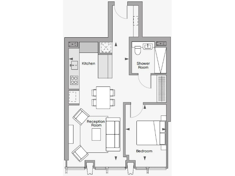
Experience urban living at its finest in this exquisite one-bedroom apartment nestled in the sought-after Southbank Tower. Boasting 625 sq ft of contemporary design and high-end furnishings, this home features an open-plan living area crowned by large windows that fill the space with natural light and breathtaking city views. Residents enjoy exclusive access to amenities like a state-of-the-art gym, swimming pool, and a stunning communal rooftop terrace—all perched above London's vibrant cultural scene.
Located moments from transport links at Southwark, Blackfriars, and Temple stations, you have direct access to everything London has to offer, from the bustling theatres of Covent Garden to the trendy shops of Soho. While the area does have a high crime rate and the service charges are on the steeper side, the potential for a vibrant urban lifestyle and investment in a prime location make this property a unique opportunity. With demand for quality apartments in London's cultural heart, don't miss your chance to claim this coveted space.
1 bedroom apartment for sale in Southbank Tower 55 Upper Ground, London, SE1 — £799,000 • 1 bed • 1 bath • 538 ft²
1 bedroom apartment for sale in Southbank Tower 55 Upper Ground, London, SE1 — £875,000 • 1 bed • 1 bath • 618 ft²
2 bedroom apartment for sale in Southbank Tower 55 Upper Ground, London, SE1 — £1,200,000 • 2 bed • 1 bath • 819 ft²
2 bedroom apartment for sale in Southbank Tower 55 Upper Ground, London, SE1 — £1,150,000 • 2 bed • 1 bath • 817 ft²
Studio apartment for sale in 55 Upper Ground, London, Greater London, SE1 — £750,000 • 1 bed • 1 bath • 415 ft²
1 bedroom apartment for sale in South Bank Tower, Upper Ground, London, SE1 — £850,000 • 1 bed • 1 bath • 688 ft²


















































