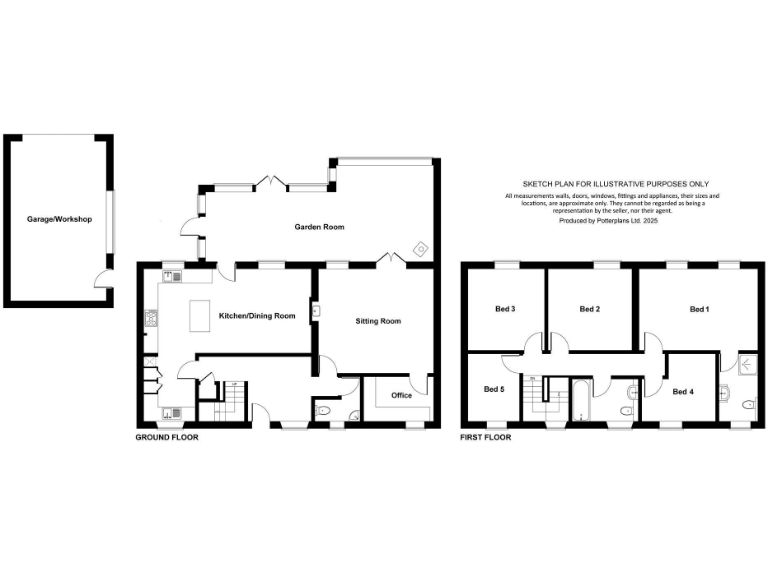
Large flexible family living with generous gardens and garage close to local amenities.
Five bedrooms with two usable as offices or flexible space
Set in the sought-after village of Hunton, this substantial stone-built home offers flexible family accommodation across two floors. The large open-plan kitchen/dining room and an extended garden room are excellent for everyday family life and entertaining, while five bedrooms (two adaptable as offices) give scope for growing families or home working.
The private south-west facing rear garden is a major asset: mature lawns, patio areas and established borders provide generous outdoor space and good afternoon sun. Off-street parking and a sizeable garage/workshop add practical storage and hobby potential.
Practical considerations: the property is heated by an oil-fired boiler and has an EPC of 60 (D), with traditional stone walls likely lacking modern cavity insulation. There is no mobile signal in the village and council tax sits above average. The location suits village living with a primary school, pub and community facilities close by, and good road links to nearby market towns.
3 bedroom semi-detached house for sale in Wyville Grove, Hunton, Bedale, DL8 — £300,000 • 3 bed • 1 bath • 1218 ft²
4 bedroom detached house for sale in Hudswell, Richmond, DL11 — £650,000 • 4 bed • 2 bath • 4688 ft²
4 bedroom detached house for sale in Low Hall, Bedale Road, Hunton, Bedale, DL8 — £650,000 • 4 bed • 2 bath • 3057 ft²
4 bedroom detached house for sale in Hudswell, Richmond, DL11 — £895,000 • 4 bed • 2 bath • 2239 ft²
4 bedroom detached house for sale in Henrietta Close, Richmond, DL10 — £575,000 • 4 bed • 2 bath • 1648 ft²
4 bedroom detached house for sale in All Saints Close, Boroughbridge, YO51 — £615,000 • 4 bed • 2 bath • 1959 ft²






















































































































































































