Low-maintenance single-storey living with garden and parking.
Brand-new fully furnished two-bedroom park home
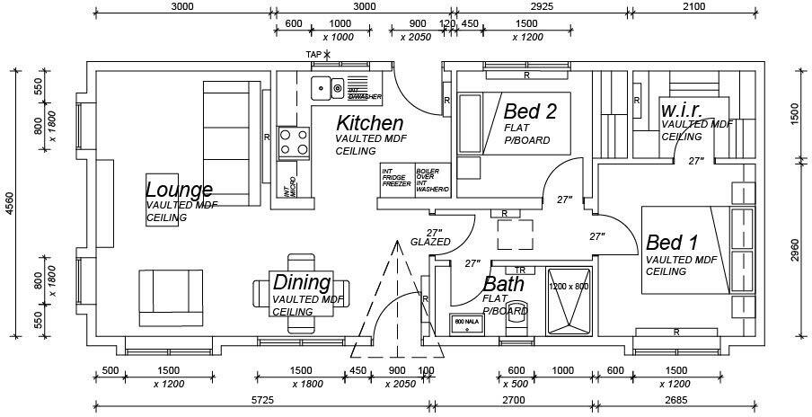
A brand-new, fully furnished two-bedroom park home set on an established residential development near Tadley. This compact 38'x16' bungalow-style unit offers low-maintenance living with a small garden and off-street parking — ideal for downsizers seeking single-level comfort and easy upkeep.
The interior provides a modern fitted kitchen, combined living/dining area, two bedrooms and a shower room, finished to a high specification. The park is pet friendly and restricted to over 25s, creating a settled community atmosphere close to local shops and amenities and within reach of Reading, Newbury and Basingstoke.
Important costs and conditions: the home sits on leased land under a virtual freehold arrangement (typical for park homes) and may not be mortgageable; purchasers should obtain legal advice. Ground rent is shown at £3,000 per year and site fees are advertised from around £250 per month — these are material ongoing costs that materially affect affordability.
Practicals to note: overall accommodation is compact (about 608 sq ft) with standard ceiling heights and limited broadband speeds in the area. Council tax band A and a low council tax charge reduce running costs, but anyone considering this property should check park rules, site fee review policies and finance options before committing.
2 bedroom park home for sale in Sleepy Hollow, Tadley, RG26 — £180,000 • 2 bed • 2 bath • 1002 ft²
2 bedroom park home for sale in Forest Lane, Tadley, Hampshire, RG26 — £200,000 • 2 bed • 2 bath • 922 ft²
2 bedroom park home for sale in Forest Lane, Tadley, RG26 — £200,000 • 2 bed • 2 bath • 923 ft²
2 bedroom park home for sale in Loddon Court Farm Park Homes, Reading, RG7 — £250,000 • 2 bed • 2 bath • 1027 ft²
2 bedroom park home for sale in Riseley, Reading, RG7 1RY, RG7 — £365,000 • 2 bed • 1 bath
2 bedroom park home for sale in 6a Walnut Tree Farm Benham Lane, Riseley, Reading, RG7 — £340,000 • 2 bed • 2 bath • 1100 ft²






































































