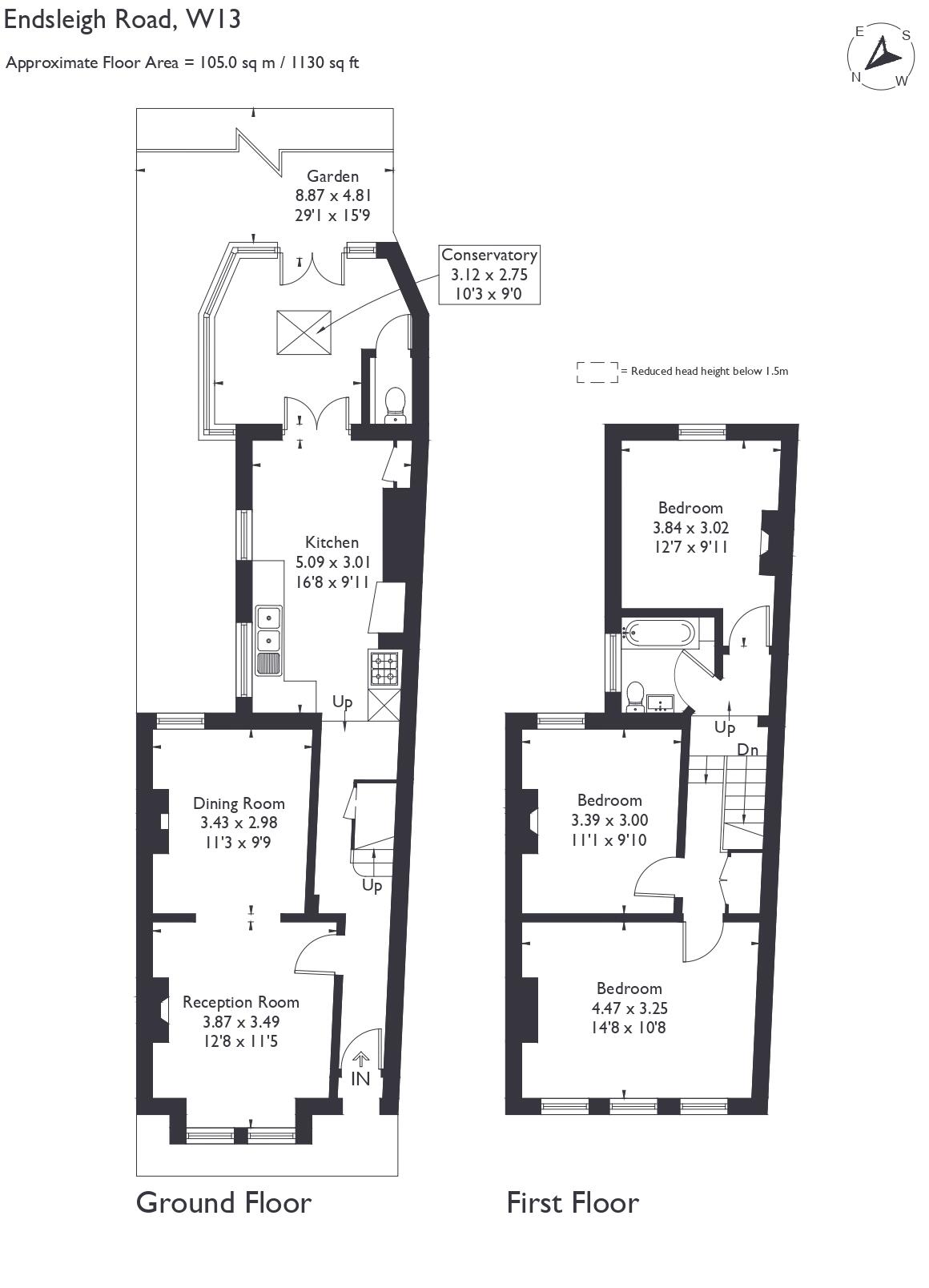
**Standout Features:**
- Three bedrooms and one bathroom with an additional WC
- Planning permission granted for loft and rear extensions
- Generous space with abundant natural light and high ceilings
- Southeast-facing garden, perfect for outdoor enjoyment
- Within Drayton Manor High School catchment
- Excellent transport links: 10-minute walk to West Ealing Station (Elizabeth Line)
Nestled in the heart of West Ealing, this charming Victorian terraced house offers a perfect blend of traditional character and modern potential, making it an ideal choice for families and first-time buyers alike. With three well-proportioned bedrooms, a separate kitchen, and a living space drenched in natural light, this property invites you to create your dream home. The generous southeast-facing garden is perfect for enjoying sunny days or outdoor gatherings, while granted planning permission for loft and rear extensions opens up endless possibilities for future expansions.
Convenience is paramount, as you are just a short walk to West Ealing Station, providing swift access to Central London via the Elizabeth Line. The home is conveniently positioned within the catchment for top-rated schools, including Drayton Manor High School, ensuring educational opportunities for families. While the property may require some modernization, its solid Victorian structure promises comfort and style. Don’t miss this chance to invest in a family-friendly community, fast transport links, and a property with great potential—schedule a viewing today before this gem slips away!







































































