1930s charm, open-plan living, garden office and sea view — ideal for families.
1930s semi-detached with period exterior and modern interior
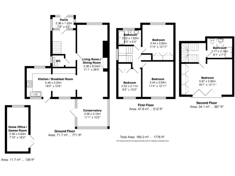
This well-presented 1930s semi-detached house on Elizabeth Avenue combines period charm with a modern open-plan ground floor, ideal for family life and entertaining. The L-shaped lounge/dining/kitchen/breakfast space and adjoining conservatory create a bright, flexible living area that flows directly to a south/west-facing garden with raised decking and lawn.
Four good-size bedrooms are arranged over three levels, with the principal bedroom on the top floor enjoying built-in wardrobes, bifold doors and a distant view over the town to the sea. The house offers two bathrooms plus a cloakroom, practical storage throughout and a brick-built garden office that suits home-working or hobbies.
Practical benefits include off-street parking for two cars, a large plot, fast broadband and very low local crime in an affluent, family-oriented neighbourhood with several ‘Good’ rated schools nearby. The property is freehold and has no known flooding risk.
Points to consider: the layout is spread over three storeys, which may not suit mobility-impaired buyers. The home is presented in good, average-sized proportions for the area but offers scope for further updating or extension (subject to planning). Buyers should note the usual checks on boiler age and services when arranging surveys.
4 bedroom detached house for sale in Queen Victoria Avenue, Hove, East Sussex, BN3 — £1,175,000 • 4 bed • 2 bath • 1767 ft²
4 bedroom semi-detached house for sale in King George Vi Drive, BN3 — £750,000 • 4 bed • 1 bath • 1665 ft²
4 bedroom detached house for sale in Elizabeth Avenue, Hove, BN3 — £750,000 • 4 bed • 3 bath • 1619 ft²
4 bedroom detached house for sale in Woodland Avenue, Hove, East Sussex, BN3 — £1,095,000 • 4 bed • 2 bath • 2299 ft²
4 bedroom semi-detached house for sale in Greenfield Crescent, Brighton, BN1 — £625,000 • 4 bed • 2 bath • 1376 ft²
3 bedroom semi-detached house for sale in Derek Avenue, Hove, East Sussex, BN3 — £900,000 • 3 bed • 2 bath • 1240 ft²


































































