Single-floor living with generous garden, private office and well-presented interiors.
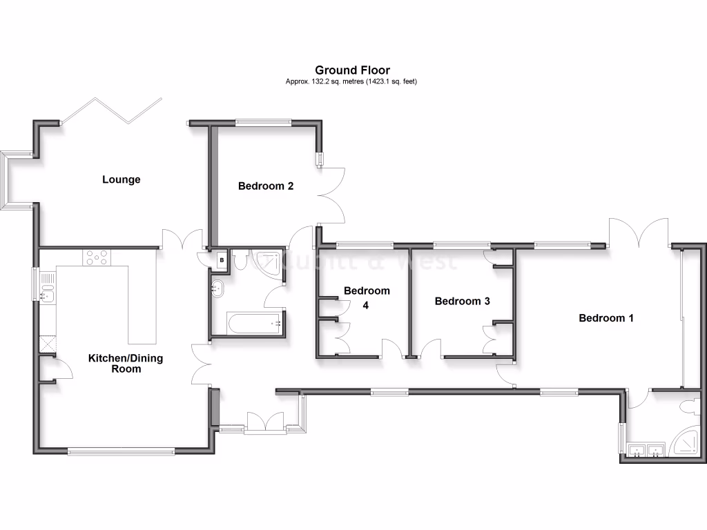
- Four bedrooms in single‑storey, easy living layout
- Large kitchen/dining room with integrated appliances
- Detached garage adapted as office/hobbies space
- Generous plot: secluded decking, summer house and driveway
- Chain free, well presented throughout
- Built 1950s–66; cavity walls likely uninsulated
- EPC awaited; budget for energy improvements
- Council tax band above average
A roomy single‑storey home set at the end of a small cul‑de‑sac, this four‑bed bungalow offers comfortable family living on a large, low‑maintenance plot. The heart of the house is a generous kitchen/dining room and a bright lounge, both benefitting from the property's light, airy feel. The detached double-length garage has been adapted for use as an office/hobbies space — ideal for home working.
Outside there is a secluded rear decking area with bar and summer house, plus a large driveway and front and side gardens. Local primary schools are rated Good and everyday amenities are within easy reach, making the location practical for school runs and local shopping. Mobile signal is excellent; broadband speeds are average.
The property is being sold chain free and is well presented throughout, with a luxury bathroom and an en suite. Practical points to note: the house was built in the 1950s–60s with cavity walls presumed uninsulated, the EPC is awaited, and council tax is above average. These factors mean buyers should budget for standard energy upgrades and check services and consents for the extended parts of the home.
4 bedroom detached bungalow for sale in Greenacres, Ashington, West Sussex, RH20 — £479,000 • 4 bed • 2 bath • 1002 ft²
3 bedroom detached bungalow for sale in Willow Way, Ashington, West Sussex, RH20 — £625,000 • 3 bed • 2 bath • 1303 ft²
4 bedroom chalet for sale in Billingshurst Road, Ashington, West Sussex, RH20 — £699,950 • 4 bed • 3 bath • 1497 ft²
3 bedroom detached bungalow for sale in West Chiltington - detached Bungalow, RH20 — £699,950 • 3 bed • 2 bath • 1244 ft²
3 bedroom detached bungalow for sale in Holm Oaks, Cowfold, Horsham, West Sussex, RH13 — £485,000 • 3 bed • 2 bath • 1045 ft²
4 bedroom detached bungalow for sale in Veras Walk, Storrington, RH20 — £775,000 • 4 bed • 3 bath • 1991 ft²


































































