**Key Features:**
- Three bedrooms; potential for use as a comfortable family home or investment property
- Modern kitchen diner equipped with integrated appliances
- Stylish bathroom with "his and hers" wash basins and a shower-over-bath setup
- Low maintenance front and rear gardens with a patio and artificial lawn
- Off-road parking available for two vehicles
- Sought-after location in Beddau with very low crime rates
- Fast broadband speeds and excellent mobile signal
- Freehold tenure offers long-term security
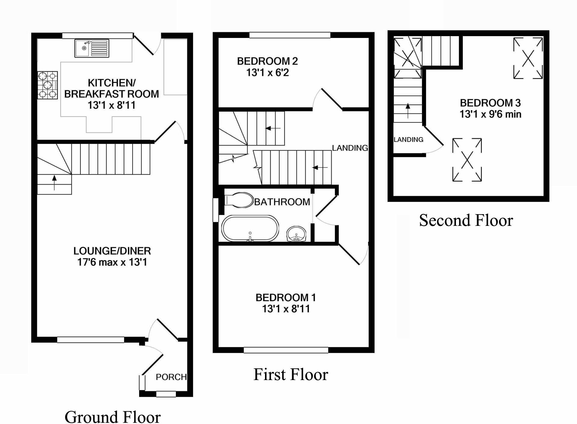
Nestled in a desirable suburb of Beddau, this delightful three-bedroom semi-detached home presents an ideal opportunity for first-time buyers, families, or investors seeking modern living with low upkeep. Enter through a practical entrance porch to discover a contemporary lounge adorned with stylish laminate flooring and a feature fireplace, radiating a warm and inviting atmosphere. The well-appointed kitchen/diner, designed for both functionality and aesthetics, features ample storage, integrated appliances, and a welcoming space for dining.
The property's upstairs features two generously-sized, carpeted bedrooms alongside a stand-out bathroom perfect for family needs. A converted loft room adds valuable versatility, whether it be for guests or a home office. With low-maintenance gardens and off-road parking for at least two vehicles, this property harmoniously combines convenience and comfort.
Though the home is in great condition, it offers potential for further personal touches or renovations, promising even greater value. Act quickly, as properties in this sought-after area do not remain on the market for long! Experience the blend of tranquility and accessibility, with important amenities just around the corner in this bright, inviting space.
3 bedroom terraced house for sale in Cross Roads, Beddau, CF38 2AD, CF38 — £180,000 • 3 bed • 1 bath • 695 ft²
3 bedroom semi-detached house for sale in Maes Trane, Beddau, Pontypridd, CF38 2SF, CF38 — £230,000 • 3 bed • 1 bath • 1021 ft²
3 bedroom end of terrace house for sale in Manor Chase, Beddau, CF38 — £250,000 • 3 bed • 1 bath • 1021 ft²
3 bedroom semi-detached house for sale in Calderton Road, Gwaunmiskin Beddau CF38 2LL, CF38 — £280,000 • 3 bed • 1 bath • 898 ft²
3 bedroom semi-detached house for sale in Moorland Crescent, Beddau, CF38 — £169,950 • 3 bed • 1 bath • 767 ft²
3 bedroom semi-detached house for sale in Castell Y Mynach Road, Beddau, CF38 2BG, CF38 — £220,000 • 3 bed • 1 bath • 639 ft²










































