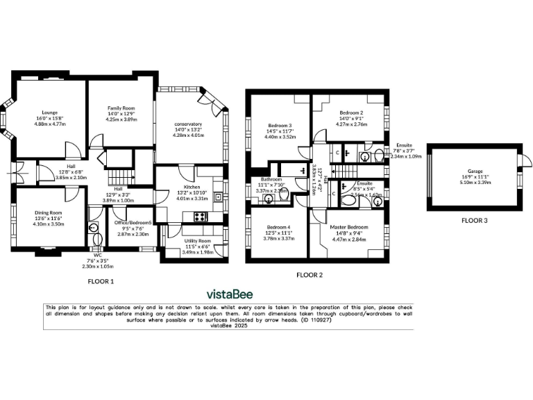
Substantial four-bedroom Edwardian house with garden and garage, ripe for sympathetic renovation..
4 bedrooms with flexible home office/fifth-bedroom potential
South-facing mature garden, conservatory outlook
Detached garage plus paved driveway parking
Edwardian features: bay windows, fireplaces, cornicing
Requires renovation throughout; modernisation needed
Local area classified very deprived; consider resale factors
Council tax described as quite expensive
Excellent mobile signal and fast broadband
Situated on the preferred south side of Largs, this Edwardian detached home (c.1900) blends period character with generous room proportions and a mature south-facing garden. The house offers multiple reception rooms, a conservatory overlooking the grounds, a versatile home office (could be a fifth bedroom), driveway parking and a detached garage — all convenient for family life and seaside living.
The property retains many original features: bay windows, fireplaces, cornicing and high ceilings in principal rooms. There is clear potential to reconfigure, update services and modernise finishes to create a comfortable contemporary family home while preserving its character. Fast broadband and excellent mobile signal make remote working viable.
Buyers should note the house needs renovation throughout, which is reflected in the price and presents scope to add value. The local area is classified as very deprived and council tax is described as quite expensive; these practical considerations will affect running costs and possible resale dynamics. No flood risk is recorded.
This home will suit a buyer seeking a substantial family house with period charm and outdoor space who is prepared to undertake refurbishment. Its location near Douglas Park facilities, Largs Yacht Haven and the Ayrshire coastline makes it attractive for families wanting coastal access and community amenities.
4 bedroom detached house for sale in 12 John Street, Largs, KA30 8DT, KA30 — £295,000 • 4 bed • 2 bath • 1561 ft²
4 bedroom semi-detached house for sale in 17a Douglas Street, Largs, KA30 8PT, KA30 — £335,000 • 4 bed • 2 bath • 1905 ft²
6 bedroom end of terrace house for sale in Aubery Crescent, Largs, KA30 — £390,000 • 6 bed • 2 bath • 2037 ft²
2 bedroom terraced house for sale in Duffield Drive, Largs, North Ayrshire, KA30 — £215,000 • 2 bed • 1 bath • 639 ft²
3 bedroom bungalow for sale in Barr Crescent, Largs, North Ayrshire, KA30 — £325,000 • 3 bed • 2 bath • 1285 ft²
2 bedroom detached house for sale in Laverock Drive, Largs, Ayrshire, KA30 — £250,000 • 2 bed • 1 bath • 1528 ft²














































































































