ME18 6EL - 2 bedroom terraced house for sale in Benover Road, Yalding,…

View on Property Piper

2 bedroom terraced house for sale in Benover Road, Yalding, ME18

Summary - Hollies, Benover Road, Yalding ME18 6EL

2 bed 1 bath Terraced

- Grade II listed Victorian terrace, three storeys
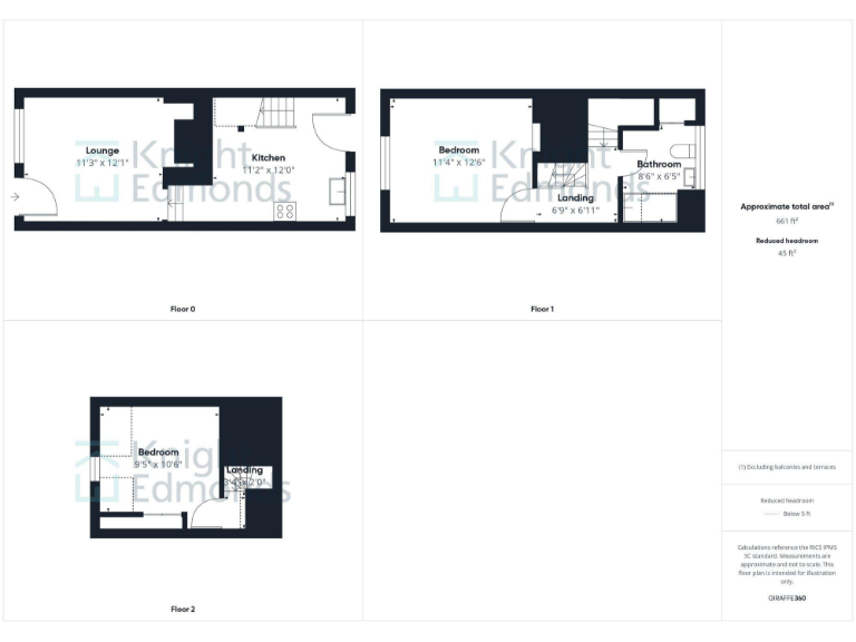
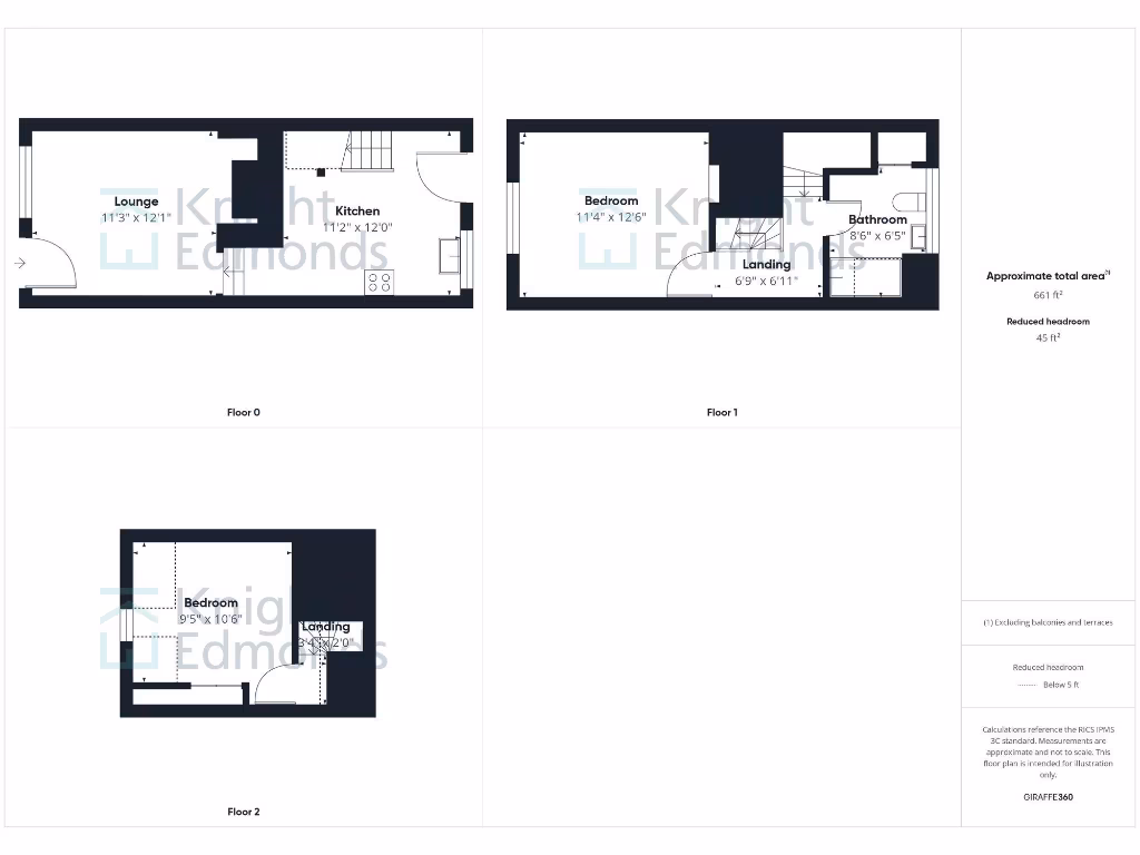
- Two double bedrooms; approx 661 sq ft
- Requires full modernisation throughout
- High flood risk; flood mitigation likely necessary
- Very small rear garden, needs attention
- Solid brick walls; probably no insulation
- Double glazing fitted post-2002; mains gas heating
- Freehold; council tax described as affordable
Set on three levels in the heart of Yalding village, this Grade II listed Victorian terrace offers characterful proportions and a rare opportunity to create a bespoke home. The property requires full modernisation throughout, so it will suit buyers who welcome a hands-on renovation and are comfortable navigating listed-building constraints.

The house retains traditional brickwork and period features and benefits from double glazing installed after 2002 and mains gas heating. At roughly 661 sq ft, the layout provides two double bedrooms, a first-floor bathroom and a compact rear garden with scope for improvement. Local amenities, a post office within walking distance and well-regarded primary and secondary schools make the location convenient for everyday village life.

Important practical considerations: the property has Grade II listed status, which will restrict alterations and can add cost and paperwork to any project. It is recorded as having a high flood risk, and the solid brick walls are likely uninsulated, so energy-efficiency upgrades may be needed. For a buyer ready to invest in sensitive refurbishment, this home offers character, a central village position and good transport links to Maidstone approximately six miles away.

Property Details

Image Descriptions

Floorplan Description

Rooms

Textual Property Features

Detected Visual Features

EPC Details

Nearby Schools

Nearest Bars And Restaurants

,,,,}

Nearest General Shops

,,}

Nearest Grocery shops

,,}

Nearest Supermarkets

,,}

Nearest Religious buildings

,,}

Nearest Medical buildings

,,,}

Nearest Leisure Facilities

,,,,}

Nearest Tourist attractions

,,}

Nearest Train stations

,,,,}

Nearest Bus stations and stops

,,,,}

Nearest Hotels

,,}

Tags

Local Market Stats

Meta

High Res Images

Compatible Images

Low res Images

Thumbnails

Raw Images

High Res Floorplan Images

Compatible Floorplan Images

Low res Floorplan Images

FloorplanImages Thumbnail

Raw Floorplan Images