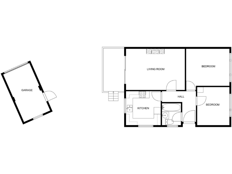
Single-floor living with garden, garage and easy access to Hythe town centre.
- Two double bedrooms with views to the Roughs
- South-facing rear garden with decked seating area
- Contemporary fitted kitchen with integrated appliances
- Garage plus parking space to the front
- Freehold property offered chain free
- High flood risk for the area — consider mitigation
- Mid-20th century interiors; small-to-medium rooms, standard ceilings
- Located within walking distance of shops and transport links
This single‑storey semi‑detached bungalow offers practical, single‑floor living with two double bedrooms, both enjoying views across the Roughs. The living/dining room opens onto a south‑facing garden with a decked seating area, creating an easy indoor/outdoor flow for relaxed afternoons.
The kitchen is a contemporary fitted space with integrated appliances and wooden worktops, ready for everyday use. A detached garage and parking space to the front add useful storage and convenience, and the property is offered freehold and chain free for a straightforward purchase.
Positioned on level ground within walking distance of Hythe town centre, supermarkets and the Royal Military Canal, the location suits downsizers or buyers seeking easy access to local shops and transport links. High speed rail and major road links are also readily reached by car.
Important practical points: the property sits in an area with a high flood risk and is in a wider area of relative deprivation with average crime rates. Interiors are mid‑20th century in style with standard ceiling heights and generally small to medium room sizes, so buyers should consider flood protection and any desired modernization or adaptation works.
 2 bedroom semi-detached bungalow for sale in Orchard Valley, Hythe, CT21 — £475,000 • 2 bed • 2 bath • 767 ft²
 2 bedroom semi-detached bungalow for sale in Orchard Valley, Hythe, CT21 — £475,000 • 2 bed • 2 bath • 767 ft² 2 bedroom bungalow for sale in Dove Close, Hythe, CT21 — £350,000 • 2 bed • 1 bath • 723 ft²
 2 bedroom bungalow for sale in Dove Close, Hythe, CT21 — £350,000 • 2 bed • 1 bath • 723 ft² 2 bedroom detached bungalow for sale in Chestnut Close, Hythe, CT21 — £350,000 • 2 bed • 1 bath • 858 ft²
 2 bedroom detached bungalow for sale in Chestnut Close, Hythe, CT21 — £350,000 • 2 bed • 1 bath • 858 ft² 2 bedroom bungalow for sale in Palmarsh Avenue, Hythe, CT21 — £395,000 • 2 bed • 2 bath • 1120 ft²
 2 bedroom bungalow for sale in Palmarsh Avenue, Hythe, CT21 — £395,000 • 2 bed • 2 bath • 1120 ft² 2 bedroom detached bungalow for sale in Cannongate Avenue, Hythe, CT21 — £450,000 • 2 bed • 2 bath • 818 ft²
 2 bedroom detached bungalow for sale in Cannongate Avenue, Hythe, CT21 — £450,000 • 2 bed • 2 bath • 818 ft² 3 bedroom bungalow for sale in Turnpike Hill, Hythe, CT21 — £425,000 • 3 bed • 1 bath • 936 ft²
 3 bedroom bungalow for sale in Turnpike Hill, Hythe, CT21 — £425,000 • 3 bed • 1 bath • 936 ft²


























































