### Standout Features:
- Recently renovated, luxurious end-terrace cottage
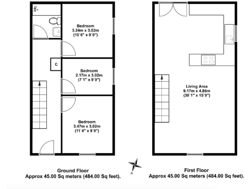
- Unique reverse style living accommodation
- Large open-plan living/dining/kitchen area with high ceilings
- Three good-sized ground floor bedrooms
- Stylish family bathroom with modern fixtures
- Low maintenance courtyard garden
- Off-street parking
- Proximity to Kirkby Stephen and Appleby, with excellent transport links
### Summary:
Discover this beautifully refurbished stone cottage in Brough Sowerby, boasting a unique reverse living layout that maximizes space and charm. The ground floor features three well-sized bedrooms and a stylish family bathroom, perfect for families or as a tranquil retreat. Ascend to the first floor where a modern, expansive open-plan living area awaits, complete with high ceilings and double doors leading to a low-maintenance courtyard—a perfect setting for entertaining or unwinding with nature.
Situated in an idyllic rural environment, this property melds modern comforts with the rustic appeal of traditional stone construction, making it a unique find in the market. While it’s worth highlighting that the broadband speeds are slow and the area may show some deprivation, the potential for rental income and the close-knit community atmosphere offer opportunities for investors or first-time buyers. With easy access to the A66 and nearby amenities, including quality schools, this home is poised for those seeking comfort and convenience in a serene setting. Act quickly—opportunities like this are in high demand and won’t last long!
3 bedroom terraced house for sale in Black Bull Lane, Brough, CA17 — £185,000 • 3 bed • 2 bath • 1228 ft²
2 bedroom end of terrace house for sale in Bridge Street, Brough, Kirkby Stephen, Cumbria, CA17 — £135,000 • 2 bed • 1 bath • 577 ft²
2 bedroom terraced house for sale in High Street, Brough, Kirkby Stephen, Cumbria, CA17 — £139,950 • 2 bed • 1 bath • 768 ft²
3 bedroom house for sale in High Street, Kirkby Stephen, CA17 — £199,995 • 3 bed • 1 bath • 537 ft²
2 bedroom end of terrace house for sale in South Road, Kirkby Stephen, CA17 — £205,000 • 2 bed • 1 bath • 915 ft²
3 bedroom detached house for sale in Black Bull Lane, Brough, Kirkby Stephen, Cumbria, CA17 — £425,000 • 3 bed • 1 bath • 725 ft²














































