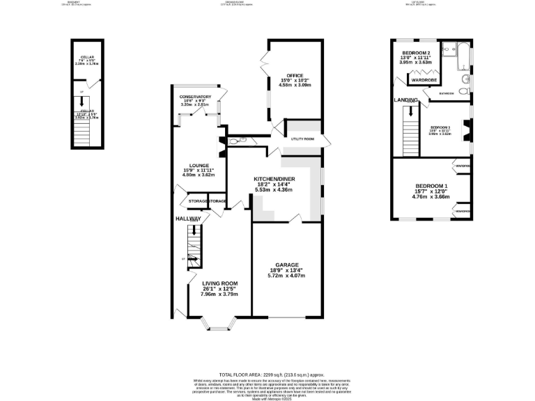
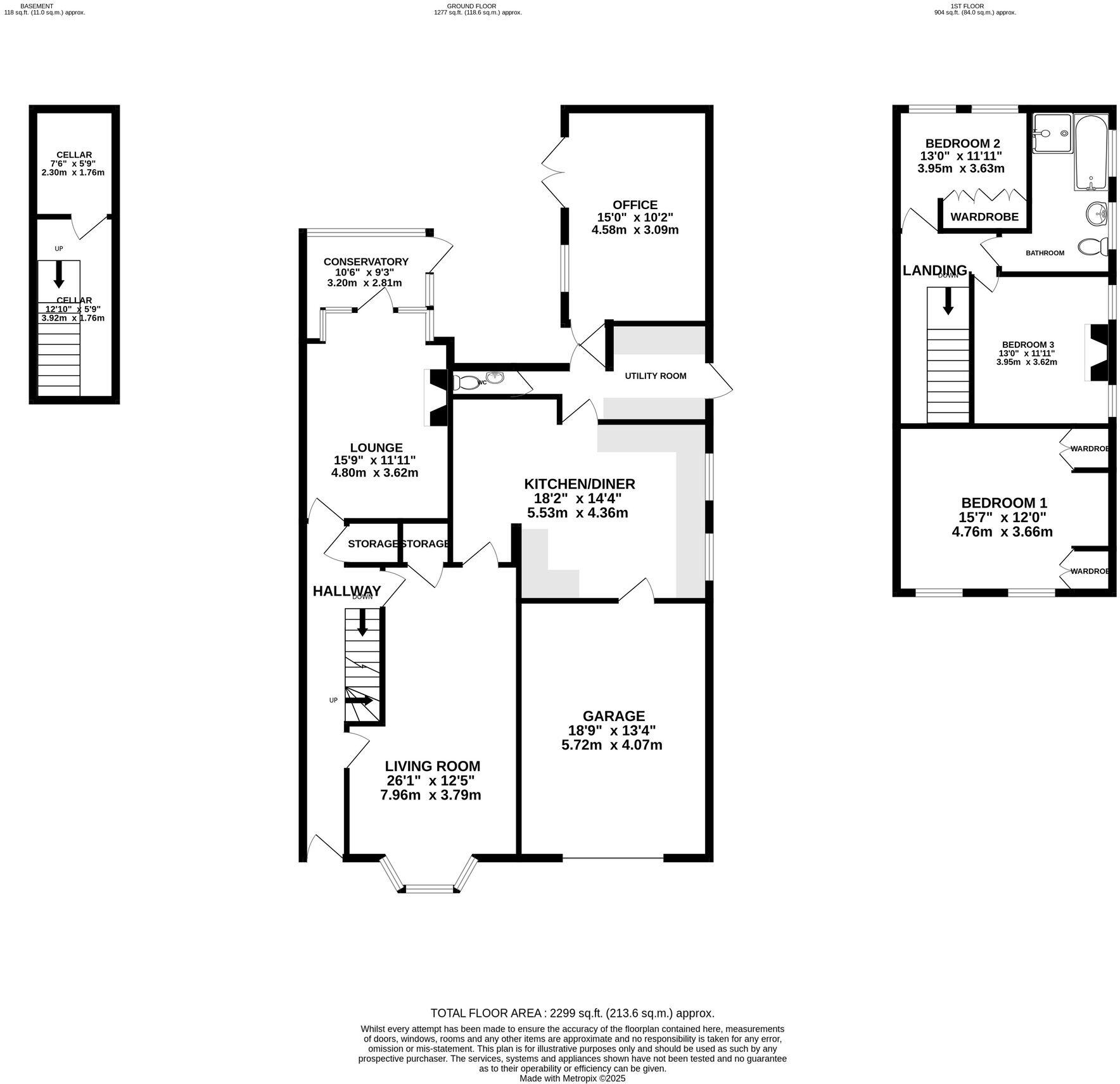
**Standout Features:**
- Charming Edwardian semi-detached property with bay windows and high ceilings
- Three spacious double bedrooms with built-in wardrobes
- Two sizable reception rooms plus a conservatory
- External family room with potential for conversion into an annexe
- Convenient garage, driveway, and basement for storage
- Lovely wrap-around garden with a new patio
- Walking distance to Caterham and Whyteleafe South train stations
This captivating Edwardian semi-detached home presents a unique opportunity for families or savvy investors seeking character, space, and convenience. Spanning an impressive 2,299 square feet, the house features three double bedrooms, two reception areas, and a modern kitchen/diner that flows seamlessly into a second lounge and a charming conservatory, perfect for relaxation or entertaining.
The standout external family room adds flexibility to the property, serving as a potential annexe for guests or a home office. Outdoor living is enriched by the newly laid patio in the wrap-around garden, an excellent extension of the indoor space designed for gatherings. With essential amenities and reputable schools nearby, this home caters to families while offering easy access to commuter routes, making it an ideal choice for professionals.
While the property is brimming with potential, note the solid brick walls may require insulation updates. Additionally, buyers might want to consider some cosmetic updates to fully realize the home's potential. Secure this charming residence before it slips away—a harmonious blend of style, comfort, and functionality awaits.



















































































