Affordable family home with garden and strong transport links.
Three bedrooms across two storeys, suitable for families or first-time buyers
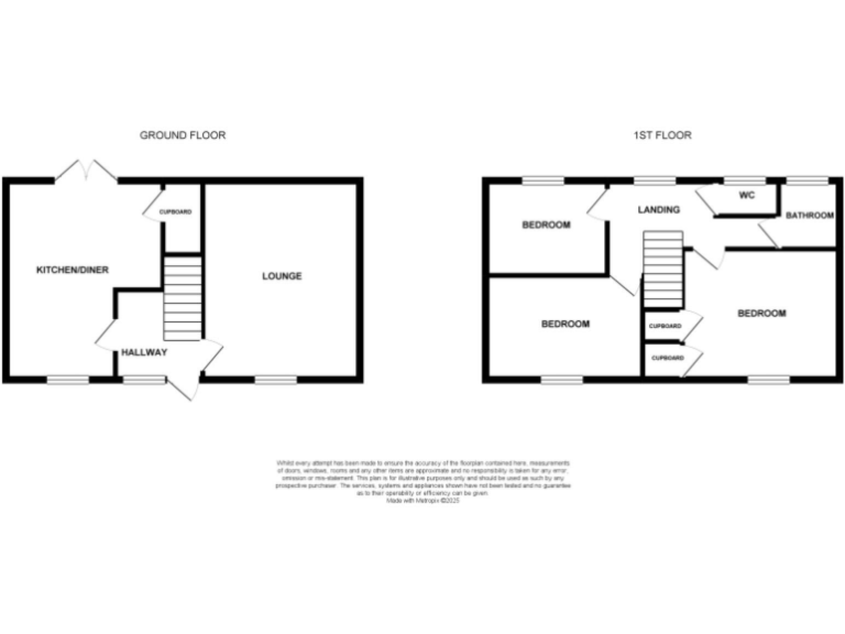
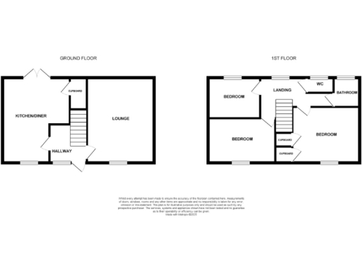
A practical three-bedroom semi in Jarrow offering spacious rooms and an enclosed rear garden — an accessible step on the ladder for first-time buyers or young families. The living room and modern-fitted kitchen are well-proportioned and filled with natural light; the kitchen’s French doors open onto a patio and lawn, extending summer living outdoors. The accommodation includes three good-sized bedrooms plus a family bathroom and separate WC, all set over two storeys.
This freehold property is in a residential neighbourhood with good local amenities, nearby bus routes and Fellgate Metro providing links to Newcastle and Sunderland. Local primary schools rated Good are within easy reach, and everyday shops, a surgery and leisure facilities are close by, making daily life straightforward. Council Tax band A keeps ongoing costs low, and mobile and broadband connections are strong.
Be realistic about location and running considerations: the area is classified as very deprived (outer city hardship/challenged communities), which may affect long-term resale timing and local services. The EPC is D; while the home appears well-maintained, buyers should expect typical mid-life maintenance and consider energy improvements. The plot is small, so the garden is low-maintenance rather than extensive.
Overall this property suits buyers seeking a sensible, affordable family home or a starter purchase with solid transport links. It offers immediate liveability with scope for modest improvements to increase comfort and energy efficiency.
3 bedroom semi-detached house for sale in Jarrow, Tyne and Wear, NE32 — £150,000 • 3 bed • 1 bath
3 bedroom semi-detached house for sale in Jarrow, Tyne And Wear, NE32 — £235,000 • 3 bed • 1 bath
3 bedroom semi-detached house for sale in Chichester Way, Jarrow, Tyne and Wear, NE32 — £210,000 • 3 bed • 1 bath
3 bedroom semi-detached house for sale in Stanfield Gardens, Gateshead, NE10 — £159,950 • 3 bed • 1 bath • 719 ft²
3 bedroom semi-detached house for sale in Firbanks, Jarrow, Tyne and Wear, NE32 4RJ, NE32 — £130,000 • 3 bed • 1 bath • 977 ft²
3 bedroom semi-detached house for sale in Hylton Road, Primrose, Jarrow, Tyne and Wear, NE32 5QX, NE32 — £145,000 • 3 bed • 1 bath • 970 ft²


































































