**Standout Features:**
- Unique duplex apartment in a restored historic building
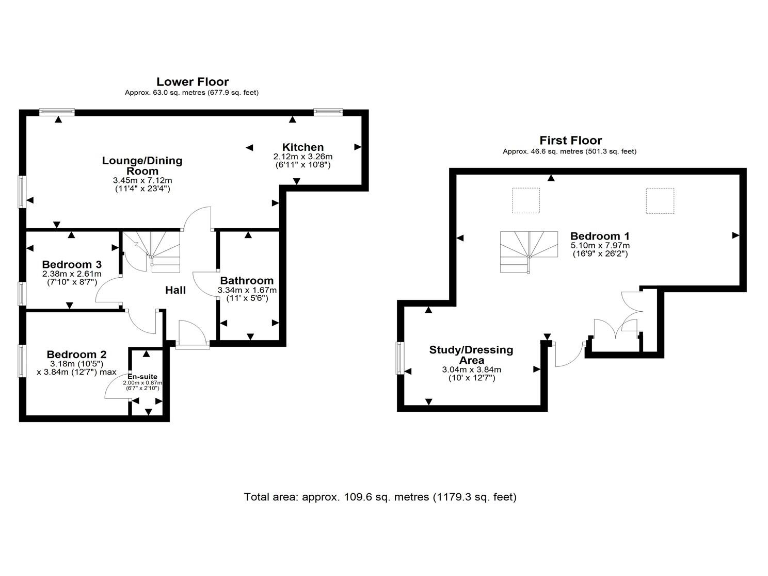
- Approx. 1,184 sq. ft. with spacious layout across two floors
- 3 bedrooms (2 doubles, 1 study) and 2 bathrooms
- Stylish open-plan living/dining area and modern fitted kitchen
- Secure allocated undercroft parking and communal gardens
- Excellent transport links to Chester, Warrington, Liverpool, and Manchester
- Modern double glazing and gas central heating
**Potential Concerns:**
- Leasehold with 980 years remaining; service charge of £1473 annually
- Above average crime rates in the area
- Listed property status may complicate renovations
**Property Summary:**
Embrace the charm of Frodsham with this beautifully presented duplex apartment situated in the historic Trinity House, a former church with a stunning Grade II Listed spire. Offering modern comfort over two spacious floors, this property is ideal for families or first-time buyers, featuring a stylish open-plan living area, two double bedrooms (one ensuite), and versatile additional space perfect for a home office or study. Enjoy the tranquility of communally landscaped grounds as well as allocated parking.
Explore local amenities including shops, cafes, and recreational facilities, all within walking distance. With fast broadband and excellent mobile reception, this stylish residence combines historic charm with contemporary living. However, be aware of the above-average crime rating, and the property’s listed status may pose some challenges for future alterations. Don’t miss the chance to secure your place in this exclusive community—ideal properties like these won’t last long!
2 bedroom apartment for sale in Central Frodsham Luxury Duplex Apartment with Open Views, WA6 — £300,000 • 2 bed • 2 bath • 1078 ft²
2 bedroom apartment for sale in Trinity House, High Street, Frodsham, WA6 — £265,000 • 2 bed • 2 bath • 1187 ft²
4 bedroom house for sale in Trinity Gardens, Frodsham, WA6 — £360,000 • 4 bed • 3 bath • 1457 ft²
4 bedroom duplex for sale in Eversley House, Kingsley Road, Frodsham, WA6 — £450,000 • 4 bed • 2 bath • 2922 ft²
2 bedroom apartment for sale in Fluin Lane, Frodsham, Cheshire, WA6 — £250,000 • 2 bed • 2 bath • 744 ft²
3 bedroom apartment for sale in Eversley House, Kingsley Road, Frodsham WA6 — £300,000 • 3 bed • 3 bath • 1916 ft²










































































