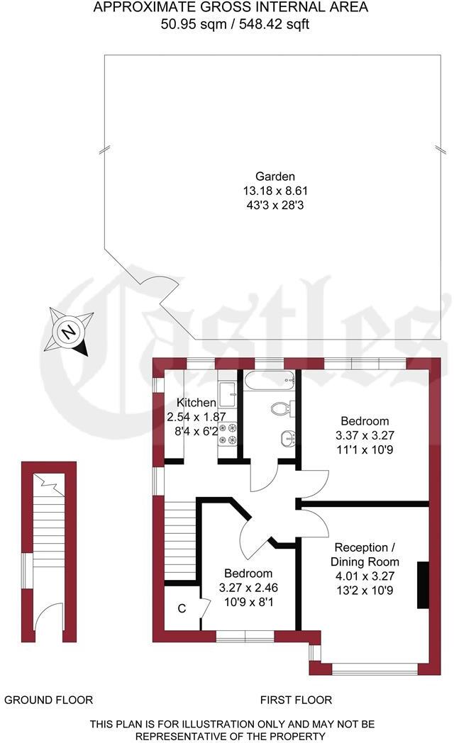
Compact first-floor maisonette with large private garden and strong commuter links..
Chain free two-bedroom first-floor maisonette
Own front entrance and private rear garden (generous size)
Gross internal area approx. 548 sqft (compact layout)
Newly fitted bathroom; double glazing and mains gas heating
Requires internal modernisation and cosmetic external work
Leasehold: 90 years remaining — consider lease-extension costs
No service charge; straightforward running costs
Area: commuter links good, local deprivation and average crime
A compact first‑floor two-bedroom maisonette with its own front entrance and a surprisingly generous private rear garden — a rare find for this size and price band in Enfield. The layout includes a reception/dining room, separate kitchen and a newly fitted bathroom; double glazing and mains gas central heating are already in place. Brimsdown BR station (services to London Liverpool Street) sits under 0.5 miles away, making this sensible for commuters.
The property is sold chain free and has no service charge, which simplifies purchase and running costs. At c.548 sqft the interior is small and will suit singles, couples or first-time buyers seeking a sensible London commuter base. The large garden materially increases usable space and offers clear scope for landscaping, entertaining or extending (subject to consents).
Important practical points: this is a leasehold maisonette with 90 years remaining on the lease — buyers should budget for potential lease extension costs. The flat requires internal modernisation and some cosmetic work; external render, windows and landscaping would also benefit from attention. The building is older (early 20th century) with solid brick walls likely lacking cavity insulation, so plan for insulation or energy-efficiency upgrades if required.
Neighbourhood factors: the wider area suits commuters and young families and local secondary and primary schools have largely positive Ofsted ratings. The location has fast broadband and excellent mobile signal, while council tax is low. The surrounding area is relatively deprived and crime levels are average — worth considering for some buyers and investors. Overall, this maisonette presents a low-entry purchase with clear refurbishment upside and strong commuter links.
2 bedroom maisonette for sale in Bowood Road, Enfield, Greater London, EN3 — £300,000 • 2 bed • 1 bath • 489 ft²
2 bedroom maisonette for sale in Myddelton Avenue, OWN GARDEN, EN1 — £305,000 • 2 bed • 1 bath • 679 ft²
2 bedroom maisonette for sale in Myddelton Avenue, Enfield, EN1 — £319,995 • 2 bed • 1 bath • 634 ft²
2 bedroom maisonette for sale in Bowood Road, Enfield, EN3 — £265,000 • 2 bed • 1 bath • 571 ft²
2 bedroom maisonette for sale in Osborne Road, Enfield, Middlesex, EN3 — £315,000 • 2 bed • 1 bath • 521 ft²
2 bedroom maisonette for sale in The Sunny Road, Enfield, EN3 — £265,000 • 2 bed • 1 bath • 540 ft²






































































