LE19 4NJ - Office for sale in The Old Bank 2 Cross Street, Enderby, Le…

View on Property Piper

Office for sale in The Old Bank 2 Cross Street, Enderby, Leicester, LE19

Summary - FIRST FLOOR, THE OLD BANK, 2, CROSS STREET LE19 4NJ

1 bed 1 bath Office

Period three-storey red-brick former bank with character features
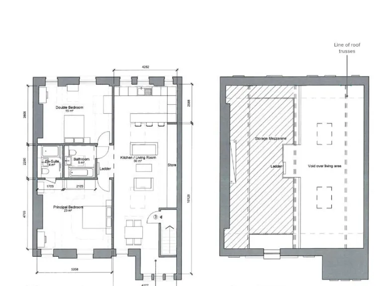
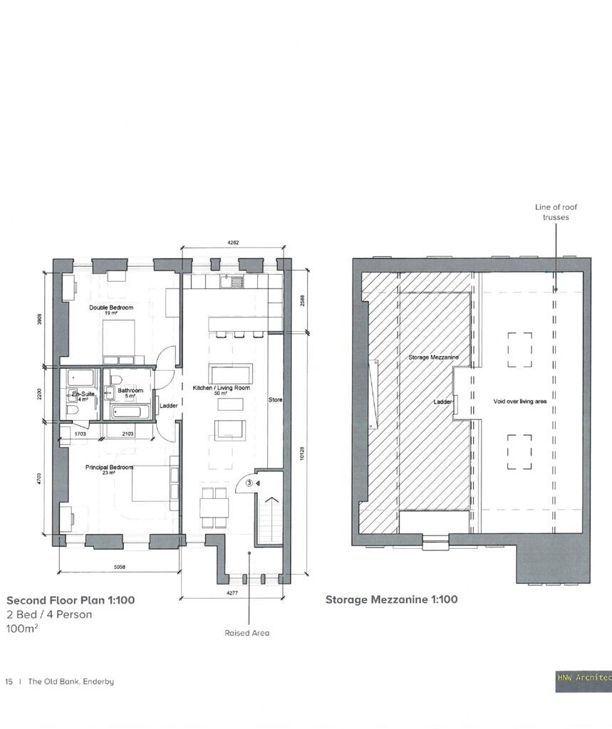
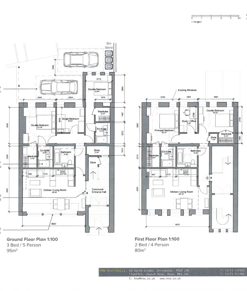
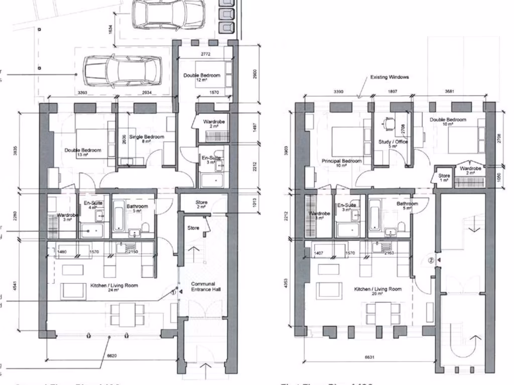
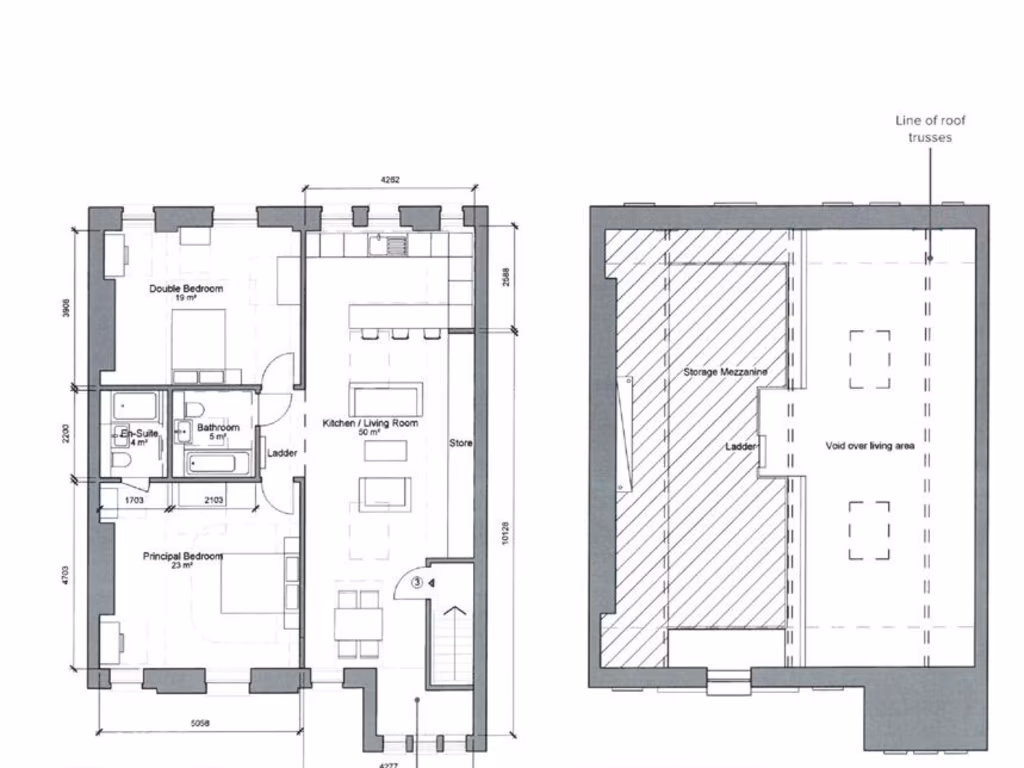
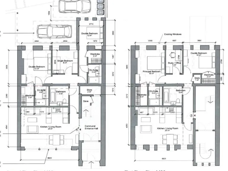
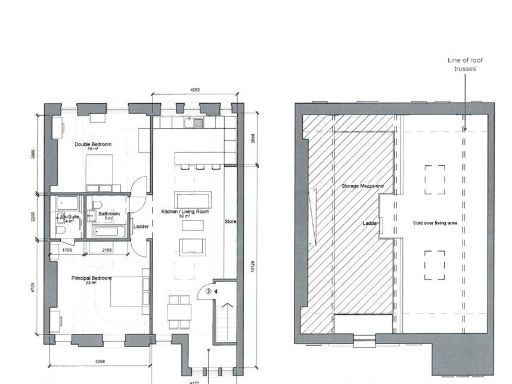
A substantial three-storey former bank in Enderby’s town centre, this period red-brick building offers attractive, newly renovated interiors and flexible open-plan floors. Exposed timber roof trusses, high ceilings and strong natural light give the upper floors character and scope for high-spec residential conversion or continued office use.

The site is marketed with redevelopment potential: plans have been drawn up for conversion to three 2‑bed flats (subject to planning) and the Gross Internal Area for redevelopment is given as 321m2 (3,455 sq ft). The property is being offered at £550,000 and benefits from two rear off-street parking spaces and fast broadband.

Important considerations: crime levels in the immediate area are recorded as very high, the building sits on a small town-centre plot with no private garden, and the tenure is not specified. Conversion remains subject to planning permission and interested parties should confirm the internal area figures (advertised GIA vs listed total sqft) and review the drawn plans before committing.

This opportunity will suit an investor or developer seeking a character conversion in a self-contained urban location, or a business requiring prominent, centrally located open-plan accommodation with separate floors and shared facilities.

Property Details

Brochure Descriptions

Image Descriptions

Textual Property Features

Detected Visual Features

Nearby Schools

Nearest Bars And Restaurants

,,,,}

Nearest General Shops

,,}

Nearest Grocery shops

,,}

Nearest Supermarkets

,,}

Nearest Religious buildings

,,}

Nearest Medical buildings

,,,}

Nearest Airports

,}

Nearest Leisure Facilities

,,,,}

Nearest Tourist attractions

,,}

Nearest Train stations

,,,,}

Nearest Bus stations and stops

,,,,}

Nearest Hotels

,,}

Tags

Local Market Stats

AirBnB Data

Similar Properties

Meta

High Res Images

Compatible Images

Low res Images

Thumbnails

Raw Images